



兵庫県神戸市兵庫区福原町
神戸市西神山手線/湊川公園 徒歩2分
山陽本線/神戸 徒歩15分
神戸高速鉄道南北線/湊川 徒歩5分
山陽本線/神戸 徒歩15分
神戸高速鉄道南北線/湊川 徒歩5分
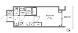
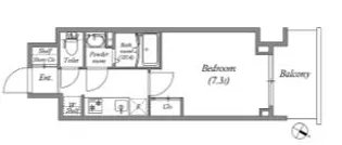
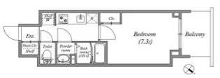
地上15階建 / 築1年以内(2025年09月) / 賃貸マンション
ペット飼育可能★オートロック・防犯カメラ・宅配用ボックス完備★システムキッチンや浴室乾燥など室内設備も充実しています★
ただいま1人が検討中!
| 賃料 / 管理費 | 敷金 / 礼金 | 間取り / 面積 | 階数 部屋番号 | 方位 | 詳細を見る | |
|---|---|---|---|---|---|---|
| 6.93万円 / 4,500円 | 無料 / 無料 | 1K / 24.9m² | 5階 ー | ー | 詳細を見る |




























































