ステラウッド野中Ⅱ[2階]
情報公開日:2025/10/30(残り15日)
次回更新日は情報公開日より15日以内
物件画像
画像提供元:株式会社C&E/MIRAI不動産
この物件のタグ
この物件にお問い合わせ
ステラウッド野中Ⅱ[2階]の物件情報
| 賃料/管理費等 | 
            7.8万円(管理費等 4,000円)
           | ||
|---|---|---|---|
| 敷金 | 無料 | 礼金 | 7.8万円 | 
| 種別/構造 | アパート/木造 | 築年月 | 2016年03月 | 
| 所在地 | 
          大阪府藤井寺市野中3丁目
         | ||
| 主要交通機関 | 近鉄南大阪線/古市 徒歩7分 近鉄南大阪線/藤井寺 徒歩20分 近鉄長野線/古市 徒歩7分 | ||
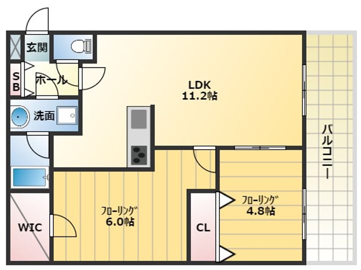
| 間取り | 2LDK | 面積 | 49.27m² | 
| 間取り詳細 | - | 方位 | - | 
| 階数/部屋番号 | 2階/地上3階建 | 駐車場 | 空有 9,000円 | 
| 特徴 |  | ||
| 設備/条件 | エアコン、バス・トイレ別、追い焚き、浴室乾燥機、独立洗面台、温水洗浄便座、即入居可、保証人不要・代行、ペット相談、IT重説 対応物件、BSアンテナ、CSアンテナ、CATV、インターネット対応、システムキッチン、ガスコンロ、コンロ二口以上、2階以上の物件、フローリング、室内洗濯機置場、バルコニー、駐車場あり、駐輪場あり、バイク置き場あり、都市ガス、敷地内ゴミ置き場、オートロック、TVドアホン、防犯カメラ | ||
| 備考 | 全てのネット掲載物件はMIRAI不動産にお任せ下さい!弊社ご契約の方に限定!家賃1ヶ月分(※上限あり)のキャッシュバック!現地でのご案内やオンライン内覧も可能です♪また初期費用のカード一括決済や分割支払、PayPay決済が可能です!詳細はお問合せ下さい☆ 保証会社:利用必須 その他規定あり− | ||
| 契約期間 | 2年 | ||
|---|---|---|---|
| 入居可能時期 | 
            即時
           | ||
| 初期費用 | 
            お問い合わせください。
           | ||
| 住宅保険 | お問い合わせください。 | 現状空室状況 | 空家 | 
  情報提供元:株式会社C&E/MIRAI不動産
  画像提供元:株式会社C&E/MIRAI不動産
  ※各種情報と現状に差異がある場合は、現状優先となります。取り扱い不動産会社が複数ある場合は、住宅保険等、一部条件が異なる場合もございますので、取扱店舗までご確認下さいませ。
この物件にお問い合わせ
周辺施設
| コンビニ | ファミリーマート羽曳野市役所 前店 (169m) ファミリーマート 羽曳野白鳥店 (599m) | |||
|---|---|---|---|---|
| スーパー | イズミヤ 古市店 (620m) 株式会社サンプラザ 誉田店 (730m) | |||
| ドラッグストア | あさひ薬局 (229m) ベガファーマ株式会社 (284m) | |||
| 保育園 | 誉田保育園 (434m) | |||
|---|---|---|---|---|
| 幼稚園 | 羽曳野市立幼稚園白鳥幼稚園 (248m) | |||
| 小学校 | 羽曳野市立白鳥小学校 (385m) | |||
| 中学校 | 羽曳野市立誉田中学校 (799m) | |||
※周辺情報は不動産会社から提供された情報ではなく、弊サービスで独自に収集した情報です。
担当者のオススメポイント!
セキュリティ面は、TVインターホン・オートロックなどを備え付けているので安心して暮らせます。収納はシューズボックス・クロゼット・全居室収納など豊富なので、衣類や履き物の整理がしやすく便利です。身だしなみを整えるときにもお使いいただける独立した洗面所が付いた物件です。共用部には敷地内ごみ置き場・バイク置場などが揃っております。システムキッチンはシンクやコンロ、作業台などが一体化しているので、掃除がしやすい構造になっています。今ニーズが高まっているのが、照明付きのお部屋です。周辺環境も良好で、魅力的な住環境のある、2016年築の物件です。付近に駅が2駅あり、行き先に応じて使い分けができます。おかずや汁物など何品も作りたい人におすすめな2口コンロが付いております。駐車場料金は、月額9000円です。専有面積も49.27平米あるので魅力的。
電話でお問い合わせご希望の方
 
        株式会社C&E MIRAI不動産
営業時間: 10:00〜19:00 定休日: 年中無休
 
         
        - ※電話経由でのお問い合せは、お祝い金プレゼントキャンペーンの適用になりませんのでご注意ください。
- ※電話でお問い合わせする場合は、光IP電話、及びIP電話からはご利用になれません。不動産会社の方からの電話番号によるお問合せはお断りしております。
ステラウッド野中Ⅱ[2階]の取扱会社情報 1件
| 取扱会社(1) | 初期費用分割払い対応株式会社C&E MIRAI不動産 | ||
|---|---|---|---|
| 住所 | 大阪府藤井寺市藤井寺1丁目1-17 第三芝田ビル1F | ||
| 電話番号 | 072-976-5010 | 免許番号 | 大阪府知事免許(1)第64279号 | 
| 取引態様 | 仲介 | 物件管理番号 | 136060000698736 ※お問い合わせの際には、担当者へ物件管理番号をお伝えください。 | 
| 連絡先 | 0037-6008-9738 | ||
| 物件に関する情報 | 
                  物件の所在地 : 大阪府藤井寺市野中3丁目 /
                  交通の利便 : 近鉄南大阪線/古市 徒歩7分、近鉄南大阪線/藤井寺 徒歩20分、近鉄長野線/古市 徒歩7分 /
                  面積 : 49.27m² /
                  築年月 : 2016年03月 /
                  賃料 : 7.8万円 /
                  管理費又は共益費等 : 4,000円 /
                  礼金等 : 1ヶ月 /
                  敷金 : 無料、保証金等 : -、 償却、敷引 : - /
                  住宅総合保険等の損害保険料 : - /
                  その他 : 全てのネット掲載物件はMIRAI不動産にお任せ下さい!弊社ご契約の方に限定!家賃1ヶ月分(※上限あり)のキャッシュバック!現地でのご案内やオンライン内覧も可能です♪また初期費用のカード一括決済や分割支払、PayPay決済が可能です!詳細はお問合せ下さい☆
保証会社:利用必須 その他規定あり−
                    / 駐車場 : 空有
9,000円
                 
                  セキュリティ面は、TVインターホン・オートロックなどを備え付けているので安心して暮らせます。収納はシューズボックス・クロゼット・全居室収納など豊富なので、衣類や履き物の整理がしやすく便利です。身だしなみを整えるときにもお使いいただける独立した洗面所が付いた物件です。共用部には敷地内ごみ置き場・バイク置場などが揃っております。システムキッチンはシンクやコンロ、作業台などが一体化しているので、掃除がしやすい構造になっています。今ニーズが高まっているのが、照明付きのお部屋です。周辺環境も良好で、魅力的な住環境のある、2016年築の物件です。付近に駅が2駅あり、行き先に応じて使い分けができます。おかずや汁物など何品も作りたい人におすすめな2口コンロが付いております。駐車場料金は、月額9000円です。専有面積も49.27平米あるので魅力的。
                 | ||
| 所属団体 | (公社)全日本不動産協会 公益社団法人近畿地区不動産公正取引協議会 (公社)不動産保証協会 | ||


 
                 
                 
                 
                   
                   
                   
                   
                   
                   
                   
                   
                   
                   
                   
                   
                   
                   
                   
                   
                   
                  