コンフォリア・リヴ茅場町[9階]
情報公開日:2026/03/07(残り15日)
次回更新日は2026/03/22
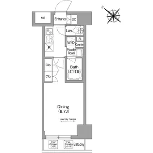
物件画像
画像提供元:東急リバブル(株)銀座センター
コンフォリア・リヴ茅場町[9階]の物件情報
| 賃料/管理費等 |
16.2万円(管理費等 1.0万円)
|
||
|---|---|---|---|
| 敷金 | 16.2万円 | 礼金 | 無料 |
| 種別/構造 | マンション/RC | 築年月 | 建築中(2026年04月) |
| 所在地 |
東京都中央区新川1
|
||
| 主要交通機関 |
東京メトロ日比谷線/茅場町駅 歩3分 東京メトロ半蔵門線/水天宮前駅 歩7分 東京メトロ日比谷線/八丁堀駅 歩10分 |
||
| 間取り | 1K | 面積 | 27.2m² |
| 間取り詳細 | 洋8.7 | 方位 | 南西 |
| 階数/部屋番号 | 9階/地上10階建 | 駐車場 | 無 |
| 特徴 |
|
||
| 設備/条件 | バストイレ別、エアコン、TVインターホン、浴室乾燥機、オートロック、室内洗濯置、温水洗浄便座、エレベーター、洗面所独立、駐輪場、宅配ボックス、礼金不要、ペット相談、敷金1ヶ月、2沿線利用可、CS、ネット使用料不要、築2年以内、3駅以上利用可、駅徒歩5分以内、駅徒歩10分以内、南西向き、BS | ||
| 備考 |
合計6.05万円(内訳:クリーニング費用:44000円/エアコン清掃費:16500円) ペット相談 定期借家 2年 保証会社利用必 エポスカード(RP) 保証料:賃料等の50%(最低2万)、月額保証料:賃料等の1%(更新料無) ※物件に関する備考は各社異なりますのでご確認のうえお問い合わせください。 |
||
| 契約期間 | お問い合わせください。 | ||
|---|---|---|---|
| 入居可能時期 |
''26年5月中旬
|
||
| 初期費用 |
お問い合わせください。
|
||
| 住宅保険 | 1.66万円2年 | 現状空室状況 | お問い合わせください。 |
情報提供元:東急リバブル(株)銀座センター
画像提供元:東急リバブル(株)銀座センター
※各種情報と現状に差異がある場合は、現状優先となります。取り扱い不動産会社が複数ある場合は、住宅保険等、一部条件が異なる場合もございますので、取扱店舗までご確認下さいませ。
この物件のタグ
この物件にお問い合わせ
周辺施設
| コンビニ |
ミニストップ新川1丁目店 株式会社エムエスツー |
|||
|---|---|---|---|---|
| スーパー |
マルエツプチ新川一丁目店 肉のハナマサ 新川店 |
|||
| ドラッグストア |
新川調剤薬局 スギ薬局 新川一丁目店 |
|||
| 保育園 |
TJインターナショナルナーサリー&プリスクール |
|||
|---|---|---|---|---|
| 幼稚園 |
中央区立 明正幼稚園 |
|||
| 小学校 |
中央区立 明正小学校 |
|||
| 中学校 |
リトルワンズミッションインターナショナルスクール |
|||
※周辺情報は不動産会社から提供された情報ではなく、弊サービスで独自に収集した情報です。
コンフォリア・リヴ茅場町[9階]の取扱会社情報 4件
| 取扱会社(1) | 東急リバブル(株)銀座センター (情報提供媒体:SUUMO) | ||
|---|---|---|---|
| 住所 | 東京都中央区銀座2-11-8 ラウンドクロス銀座2丁目7階 | ||
| 電話番号 | 0120-917841 | 免許番号 | 国土交通大臣(12)第2611号 |
| 取引態様 | 仲介 | 物件管理番号 |
100494033898 ※お問い合わせの際には、担当者へ物件管理番号をお伝えください。 |
| 物件に関する情報 |
物件の所在地 : 東京都中央区新川1 /
交通の利便 : 東京メトロ日比谷線/茅場町駅 歩3分、東京メトロ半蔵門線/水天宮前駅 歩7分、東京メトロ日比谷線/八丁堀駅 歩10分 /
面積 : 27.2m² /
築年月 : 建築中(2026年04月) /
賃料 : 16.2万円 /
管理費又は共益費等 : 1.0万円 /
礼金等 : 無料 /
敷金 : 1ヶ月、保証金等 : -、 償却、敷引 : - /
住宅総合保険等の損害保険料 : 1.66万円2年 /
その他 : 合計6.05万円(内訳:クリーニング費用:44000円/エアコン清掃費:16500円)
ペット相談
定期借家 2年
保証会社利用必 エポスカード(RP) 保証料:賃料等の50%(最低2万)、月額保証料:賃料等の1%(更新料無)
/ 駐車場 : 無
|
||
| 所属団体 |
(一社)不動産流通経営協会会員 (公社)首都圏不動産公正取引協議会加盟 |
||
| 取扱会社(2) | ピタットハウス行徳駅前店スターツピタットハウス(株) (情報提供媒体:SUUMO) | ||
|---|---|---|---|
| 住所 | 千葉県市川市行徳駅前2-13-1ENDOBLDG3 | ||
| 電話番号 | 047-359-1431 | 免許番号 | 国土交通大臣(4)第7129号 |
| 取引態様 | 仲介 | 物件管理番号 |
100494057931 ※お問い合わせの際には、担当者へ物件管理番号をお伝えください。 |
| 物件に関する情報 |
物件の所在地 : 東京都中央区新川1 /
交通の利便 : 東京メトロ日比谷線/茅場町駅 歩3分、東京メトロ半蔵門線/水天宮前駅 歩7分、東京メトロ日比谷線/八丁堀駅 歩10分 /
面積 : 27.2m² /
築年月 : 建築中(2026年04月) /
賃料 : 16.2万円 /
管理費又は共益費等 : 1.0万円 /
礼金等 : 無料 /
敷金 : 1ヶ月、保証金等 : -、 償却、敷引 : - /
住宅総合保険等の損害保険料 : 1.66万円2年 /
その他 : 合計6.05万円(内訳:清掃費:44000円、エアコン清掃費:16500円)
ペット相談
定期借家 2年
保証会社利用必 エポスカード(RP) 保証料:賃料等の50%(最低2万)、月額保証料:賃料等の1%(更新料無)
/ 駐車場 : 無
|
||
| 所属団体 |
(一社)全国住宅産業協会会員 (公社)首都圏不動産公正取引協議会加盟 |
||
| 取扱会社(3) | いい部屋ネット神田西口店(株)GENEROUS (情報提供媒体:SUUMO) | ||
|---|---|---|---|
| 住所 | 東京都千代田区内神田2-9ー13 神田オールビル4階 | ||
| 電話番号 | 03-6555-3982 | 免許番号 | 東京都知事(1)第108751号 |
| 取引態様 | 仲介 | 物件管理番号 |
100494085838 ※お問い合わせの際には、担当者へ物件管理番号をお伝えください。 |
| 物件に関する情報 |
物件の所在地 : 東京都中央区新川1 /
交通の利便 : 東京メトロ日比谷線/茅場町駅 歩3分、東京メトロ半蔵門線/水天宮前駅 歩7分、東京メトロ日比谷線/八丁堀駅 歩10分 /
面積 : 27.2m² /
築年月 : 建築中(2026年04月) /
賃料 : 16.2万円 /
管理費又は共益費等 : 1.0万円 /
礼金等 : 無料 /
敷金 : 1ヶ月、保証金等 : -、 償却、敷引 : - /
住宅総合保険等の損害保険料 : 1.66万円 /
その他 : ペット相談
定期借家 2年
保証会社利用必 保証会社名:エポスカード(RP)、保証料:賃料等の50%(最低2万)、月額保証料:賃料等の1%(更新料無)
/ 駐車場 : 無
|
||
| 所属団体 |
(公社)東京都宅地建物取引業協会会員 (公社)首都圏不動産公正取引協議会加盟 |
||
| 取扱会社(4) | ピタットハウス都心営業2課スターツピタットハウス(株) (情報提供媒体:SUUMO) | ||
|---|---|---|---|
| 住所 | 東京都中央区日本橋3-1-8 スターツ日本橋ビル4階 | ||
| 電話番号 | 03-6202-0190 | 免許番号 | 国土交通大臣(4)第7129号 |
| 取引態様 | 仲介 | 物件管理番号 |
100494069396 ※お問い合わせの際には、担当者へ物件管理番号をお伝えください。 |
| 物件に関する情報 |
物件の所在地 : 東京都中央区新川1 /
交通の利便 : 東京メトロ日比谷線/茅場町駅 歩3分、東京メトロ半蔵門線/水天宮前駅 歩7分、東京メトロ日比谷線/八丁堀駅 歩10分 /
面積 : 27.2m² /
築年月 : 建築中(2026年04月) /
賃料 : 16.2万円 /
管理費又は共益費等 : 1.0万円 /
礼金等 : 無料 /
敷金 : 1ヶ月、保証金等 : -、 償却、敷引 : - /
住宅総合保険等の損害保険料 : 1.66万円2年 /
その他 : 合計6.05万円(内訳:清掃費:44000円、エアコン清掃費:16500円)
ペット相談
定期借家 2年
保証会社利用必 エポスカード(RP) 保証料:賃料等の50%(最低2万)、月額保証料:賃料等の1%(更新料無)
/ 駐車場 : 無
|
||
| 所属団体 |
(一社)全国住宅産業協会会員 (公社)首都圏不動産公正取引協議会加盟 |
||

