北仙台シティプレイス東館[12階]
情報公開日:2025/10/27(残り15日)
次回更新日は情報公開日より15日以内
物件画像
画像提供元:(株)REI
この物件のタグ
この物件にお問い合わせ
北仙台シティプレイス東館[12階]の物件情報
| 賃料/管理費等 |
12.0万円(管理費等 -)
|
||
|---|---|---|---|
| 敷金 | 24.0万円 | 礼金 | 12.0万円 |
| 種別/構造 | マンション/SRC | 築年月 | 1998年02月 |
| 所在地 |
宮城県仙台市青葉区堤町1
|
||
| 主要交通機関 |
仙台市地下鉄南北線/北仙台駅 歩1分 JR仙山線/北仙台駅 歩1分 |
||
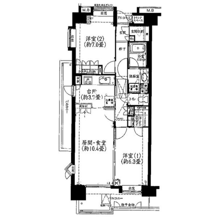
| 間取り | 2LDK | 面積 | 64.56m² |
| 間取り詳細 | - | 方位 | 南西 |
| 階数/部屋番号 | 12階/地上14階建 | 駐車場 | 無 |
| 特徴 |
|
||
| 設備/条件 | バストイレ別、バルコニー、エアコン、TVインターホン、浴室乾燥機、オートロック、室内洗濯置、シューズボックス、システムキッチン、角住戸、温水洗浄便座、エレベーター、洗面所独立、駐輪場、宅配ボックス、即入居可、最上階、3口以上コンロ、ロフト、ウォークインクロゼット、2沿線利用可、CS、敷金2ヶ月、保証金不要、駅徒歩5分以内、南西向き、都市ガス、BS、礼金1ヶ月、保証会社利用可 | ||
| 備考 |
駐車場:要確認 オリコフォレントインシュア利用可 初回:月額支払総額の30% 個人契約時加入必須 |
||
| 契約期間 | お問い合わせください。 | ||
|---|---|---|---|
| 入居可能時期 |
即入居可
|
||
| 初期費用 |
お問い合わせください。
|
||
| 住宅保険 | 要 | 現状空室状況 | お問い合わせください。 |
情報提供元:(株)REI
画像提供元:(株)REI
※各種情報と現状に差異がある場合は、現状優先となります。取り扱い不動産会社が複数ある場合は、住宅保険等、一部条件が異なる場合もございますので、取扱店舗までご確認下さいませ。
この物件にお問い合わせ
周辺施設
| コンビニ |
ファミリーマート 北仙台駅前店 ファミリーマート堤町一丁目店 |
|||
|---|---|---|---|---|
| スーパー |
西友北仙台店 西友 台原店 |
|||
| ドラッグストア |
モニカ薬局 北仙台店 ツルハ 調剤薬局北仙台駅前店 |
|||
| 保育園 |
ミッキー保育園北仙台園 |
|||
|---|---|---|---|---|
| 幼稚園 |
北仙台幼稚園 |
|||
| 小学校 |
仙台市立台原小学校 |
|||
| 中学校 |
仙台市立上杉山中学校 |
|||
※周辺情報は不動産会社から提供された情報ではなく、弊サービスで独自に収集した情報です。
担当者のオススメポイント!
★お部屋探しは【仙台駅前情報プラザ】REIへご相談ください★
最上階・南西角部屋・2面バルコニー・ロフト付き! 最寄りの駅まで徒歩依1分の好立地です♪
北仙台シティプレイス東館[12階]の取扱会社情報 1件
| 取扱会社(1) | (株)REI (情報提供媒体:SUUMO) | ||
|---|---|---|---|
| 住所 | 宮城県仙台市青葉区中央2-6-8 | ||
| 電話番号 | 022-213-5881 | 免許番号 | 宮城県知事(6)第4432号 |
| 取引態様 | 仲介 | 物件管理番号 |
100469530631 ※お問い合わせの際には、担当者へ物件管理番号をお伝えください。 |
| 物件に関する情報 |
物件の所在地 : 宮城県仙台市青葉区堤町1 /
交通の利便 : 仙台市地下鉄南北線/北仙台駅 歩1分、JR仙山線/北仙台駅 歩1分 /
面積 : 64.56m² /
築年月 : 1998年02月 /
賃料 : 12.0万円 /
管理費又は共益費等 : - /
礼金等 : 1ヶ月 /
敷金 : 2ヶ月、保証金等 : -、 償却、敷引 : - /
住宅総合保険等の損害保険料 : 要 /
その他 : 駐車場:要確認
オリコフォレントインシュア利用可 初回:月額支払総額の30% 個人契約時加入必須
/ 駐車場 : 無
★お部屋探しは【仙台駅前情報プラザ】REIへご相談ください★
最上階・南西角部屋・2面バルコニー・ロフト付き! 最寄りの駅まで徒歩依1分の好立地です♪ |
||
| 所属団体 |
(公社)宮城県宅地建物取引業協会会員 東北地区不動産公正取引協議会加盟 |
||

