東京都大田区東六郷1の賃貸マンション
情報公開日:2025/10/19(残り15日)
次回更新日は情報公開日より15日以内
物件画像
画像提供元:(株)エリア・エステート川崎店
この物件のタグ
この物件にお問い合わせ
東京都大田区東六郷1の賃貸マンションの物件情報
| 賃料/管理費等 |
10.45万円(管理費等 1.5万円)
|
||
|---|---|---|---|
| 敷金 | 無料 | 礼金 | 10.45万円 |
| 種別/構造 | マンション/RC | 築年月 | 2017年07月 |
| 敷金積み増し | ペット飼育の場合敷金1ヶ月(総額) | ||
| 所在地 |
東京都大田区東六郷1
|
||
| 主要交通機関 |
京急本線/雑色駅 歩9分 京急本線/京急蒲田駅 歩12分 京急空港線/糀谷駅 歩12分 |
||
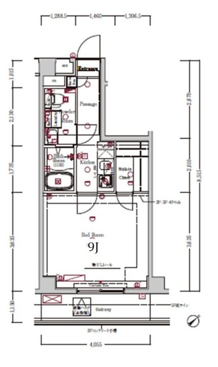
| 間取り | 1K | 面積 | 29.49m² |
| 間取り詳細 | 洋9 K1.5 | 方位 | 南東 |
| 階数/部屋番号 | 3階/地上5階建 | 駐車場 | 無 |
| 特徴 |
|
||
| 設備/条件 | バストイレ別、バルコニー、エアコン、ガスコンロ対応、クロゼット、フローリング、シャワー付洗面台、TVインターホン、浴室乾燥機、オートロック、室内洗濯置、シューズボックス、システムキッチン、追焚機能浴室、温水洗浄便座、エレベーター、洗面所独立、洗面化粧台、2口コンロ、駐輪場、宅配ボックス、CATV、光ファイバー、外壁タイル張り、即入居可、敷金不要、防犯カメラ、ペット相談、分譲賃貸、グリル付、保証人不要、全居室フローリング、CS、ネット使用料不要、平坦地、3駅以上利用可、駅徒歩10分以内、東南向き、都市ガス、BS、保証会社利用可、IT重説 対応物件、初期費用カード決済可、通風良好 | ||
| 備考 |
巡回管理/ペット可:飼育時敷金1ヶ月追加(償却)。緊急サポート:1.000円/月。1年未満の解約:賃料等の1ヶ月分の短期解約違約金あり。 合計10.12万円(内訳:退去時清掃費4.95万円 事務手数料0.55万円 除菌消臭1.32万円 鍵交換代3.3万円) 二人入居可/ペット相談 普通借家 2年 保証会社利用必 初回保証料:賃料等の100%、月次:賃料等の1% ※物件に関する備考は各社異なりますのでご確認のうえお問い合わせください。 |
||
| 契約期間 | お問い合わせください。 | ||
|---|---|---|---|
| 入居可能時期 |
即入居可
|
||
| 初期費用 |
お問い合わせください。
|
||
| 住宅保険 | 1.8万円2年 | 現状空室状況 | お問い合わせください。 |
情報提供元:(株)エリア・エステート川崎店
画像提供元:(株)エリア・エステート川崎店
※各種情報と現状に差異がある場合は、現状優先となります。取り扱い不動産会社が複数ある場合は、住宅保険等、一部条件が異なる場合もございますので、取扱店舗までご確認下さいませ。
この物件にお問い合わせ
周辺施設
| コンビニ |
セブンイレブン七辻店 ローソンストア100南六郷店 |
|||
|---|---|---|---|---|
| スーパー |
まいばすけっと 東六郷2丁目店 まいばすけっと 日の出銀座商店街 |
|||
| ドラッグストア |
鈴薬局 仲六郷店 スズキ調剤薬局 |
|||
| 保育園 |
大田区立保育園 萩中 |
|||
|---|---|---|---|---|
| 幼稚園 |
光輪幼稚園 |
|||
| 小学校 |
大田区立仲六郷小学校 |
|||
| 中学校 |
大田区立南六郷中学校 南六郷 |
|||
※周辺情報は不動産会社から提供された情報ではなく、弊サービスで独自に収集した情報です。
担当者のオススメポイント!
【インターネット無料】【オートロック】【宅配BOX】
◆「法人契約可」◆「クレジッドカード支払い可」◆「初期費用の分割・相談」◆「内覧希望」◆「急ぎの入居」◆「法人契約」◆「保証人不要」◆「入居条件の相談」◆等、何でもお気軽にご相談下さい。
東京都大田区東六郷1の賃貸マンションの取扱会社情報 3件
| 取扱会社(1) | (株)エリア・エステート川崎店 (情報提供媒体:SUUMO) | ||
|---|---|---|---|
| 住所 | 神奈川県川崎市川崎区駅前本町 15-5 十五番館6-A | ||
| 電話番号 | 044-210-0330 | 免許番号 | 神奈川県知事(3)第27321号 |
| 取引態様 | 仲介 | 物件管理番号 |
100454078454 ※お問い合わせの際には、担当者へ物件管理番号をお伝えください。 |
| 物件に関する情報 |
物件の所在地 : 東京都大田区東六郷1 /
交通の利便 : 京急本線/雑色駅 歩9分、京急本線/京急蒲田駅 歩12分、京急空港線/糀谷駅 歩12分 /
面積 : 29.49m² /
築年月 : 2017年07月 /
賃料 : 10.45万円 /
管理費又は共益費等 : 1.5万円 /
礼金等 : 1ヶ月 /
敷金 : 無料、保証金等 : -、 償却、敷引 : - /
住宅総合保険等の損害保険料 : 1.8万円2年 /
その他 : 巡回管理/ペット可:飼育時敷金1ヶ月追加(償却)。緊急サポート:1.000円/月。1年未満の解約:賃料等の1ヶ月分の短期解約違約金あり。
合計10.12万円(内訳:退去時清掃費4.95万円 事務手数料0.55万円 除菌消臭1.32万円 鍵交換代3.3万円)
二人入居可/ペット相談
普通借家 2年
保証会社利用必 初回保証料:賃料等の100%、月次:賃料等の1%
/ 駐車場 : 無
【インターネット無料】【オートロック】【宅配BOX】
◆「法人契約可」◆「クレジッドカード支払い可」◆「初期費用の分割・相談」◆「内覧希望」◆「急ぎの入居」◆「法人契約」◆「保証人不要」◆「入居条件の相談」◆等、何でもお気軽にご相談下さい。 |
||
| 所属団体 |
(公社)神奈川県宅地建物取引業協会会員 (公社)首都圏不動産公正取引協議会加盟 |
||
| 取扱会社(2) | いい部屋ネット大崎店(株)ヘヤコミュニケーション (情報提供媒体:SUUMO) | ||
|---|---|---|---|
| 住所 | 東京都品川区大崎5-10-14 テクノスビル1階 | ||
| 電話番号 | 03-6303-9449 | 免許番号 | 東京都知事(3)第94900号 |
| 取引態様 | 仲介 | 物件管理番号 |
100294219470 ※お問い合わせの際には、担当者へ物件管理番号をお伝えください。 |
| 物件に関する情報 |
物件の所在地 : 東京都大田区東六郷1 /
交通の利便 : 京急本線/京急蒲田駅 歩13分、京急本線/雑色駅 歩10分、京急空港線/糀谷駅 歩12分 /
面積 : 29.49m² /
築年月 : 2017年07月 /
賃料 : 10.8万円 /
管理費又は共益費等 : 1.5万円 /
礼金等 : 1ヶ月 /
敷金 : 無料、保証金等 : -、 償却、敷引 : - /
住宅総合保険等の損害保険料 : 1.8万円2年 /
その他 : 通勤管理/現金0円~のお引越しクレジット決済可能☆
合計3.3万円(内訳:鍵交換代:33000円、契約事務手数料5500円)
クリーニング費用(退去時):49500円 除菌消臭費用:13200円、24時間サポート費用:1100円/月
二人入居可/ペット相談/ルームシェア相談
保証会社利用必 貸主指定会社有 初回保証料:総賃料の100% 月額保証料:総賃料の1%
/ 駐車場 : 近隣駐車場
近隣100m30000円
★平日オンライン成約で仲介手数料20%キャッシュバック★
★現在キャンペーン実施中★平日オンライン成約で仲介手数料20%キャッシュバック★ご質問等はいい部屋ネット大崎店にお早めにお問い合わせ下さい(:) |
||
| 所属団体 |
(公社)全日本不動産協会東京都本部会員 (公社)首都圏不動産公正取引協議会加盟 |
||
| 取扱会社(3) | リブマックス川崎店(株)リブマックスリーシング (情報提供媒体:SUUMO) | ||
|---|---|---|---|
| 住所 | 神奈川県川崎市幸区南幸町2-20-8 | ||
| 電話番号 | 044-540-0505 | 免許番号 | 国土交通大臣(3)第8116号 |
| 取引態様 | 仲介 | 物件管理番号 |
100469348500 ※お問い合わせの際には、担当者へ物件管理番号をお伝えください。 |
| 物件に関する情報 |
物件の所在地 : 東京都大田区東六郷1 /
交通の利便 : 京急本線/雑色駅 歩9分、京急空港線/糀谷駅 歩12分、京急本線/京急蒲田駅 歩13分 /
面積 : 29.49m² /
築年月 : 2017年07月 /
賃料 : 10.45万円 /
管理費又は共益費等 : 1.5万円 /
礼金等 : 1ヶ月 /
敷金 : 無料、保証金等 : -、 償却、敷引 : - /
住宅総合保険等の損害保険料 : 1.8万円2年 /
その他 : 弊社ではネットに掲載されている物件は全てご紹介可能になりますので気になる物件は全て申し付けください★
合計3.3万円(内訳:鍵交換代3.3万円)
更新料 新賃料1.00ヶ月分
二人入居可/ペット相談
普通借家 2年
保証会社利用必 初回契約時:100%、月額:1%、※エポス非承認の場合:その他保証会社有
/ 駐車場 : 無
★エリア最大級★経験豊富なスタッフが多数在籍しております♪
初期費用クレジット支払可能!弊社ではネットに掲載されている物件は全てご紹介可能になりますので気になる物件は全て申し付けください★ |
||
| 所属団体 |
(公社)神奈川県宅地建物取引業協会会員 (公社)首都圏不動産公正取引協議会加盟 |
||

