
ルーブル大森山王
空室情報
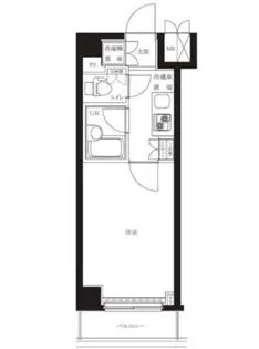
| 間取り画像 | 階 部屋番号 | 賃料 管理費 | 敷金 礼金 | 間取 面積 | 方位 | |
|---|---|---|---|---|---|---|
新着 ![]() | 2階 ー | 7.6万円 9,000円 | 無料 7.6万円 | 1K 20.67m² | ー | |
新着 ![]() | 6階 ー | 8.5万円 9,000円 | 無料 8.5万円 | 1K 20.36m² | 西 | |
![]() | 1階 ー | 7.8万円 5,000円 | 無料 7.8万円 | 1K 21.78m² | ー |
過去掲載物件情報
| 階 | 賃料 管理費 | 敷金 礼金 | 間取 面積 |
|---|---|---|---|
| 8階 | 9.2万円 ー | 無料 9.2万円 | 1K 20.68m² |
| 8階 | 9.2万円 ー | 無料 9.2万円 | 1K 20.69m² |
| 2階 | 8.8万円 ー | 無料 8.8万円 | 1K 20.69m² |
建物情報
| 住所 | 東京都大田区山王4丁目周辺物件を探す | 最寄り駅/列車種別 | 快速549m |
|---|---|---|---|
| 階建 | 地上9階建 | 築年月 | 2008年03月 |
| 種別 | マンション | 構造 | RC |
周辺環境
周辺地図
周辺施設
山王プライマリー薬局 (333m)
ハナブサ薬局 (411m)
オオゼキ大森店 (512m)
スーパーオオゼキ大森店 (512m)
ローソン 大田山王四丁目店 (230m)
セブンイレブン 南馬込店 (269m)
大森ルーテル幼稚園 (510m)
大田区立保育園 山王 (229m)
大田区立馬込第二小学校 (405m)
大田区立馬込東中学校 馬込東 (512m)
※周辺情報は不動産会社から提供された情報ではなく、弊サービスで独自に収集した情報です。
※2024年10月時点のデータを元にしているため、最新および正確でない可能性があります。








