トレーフル[1階]
情報公開日:2026/01/29(残り15日)
次回更新日は2026/02/11
物件画像
画像提供元:いい部屋ネット大東建託リーシング(株)盛岡店
この物件のタグ
トレーフル[1階]の物件情報
| 賃料/管理費等 |
5.9万円(管理費等 3,000円)
|
||
|---|---|---|---|
| 敷金 | 無料 | 礼金 | 無料 |
| 種別/構造 | アパート/木造 | 築年月 | 2020年03月 |
| 所在地 |
岩手県盛岡市永井
|
||
| 主要交通機関 | JR東北本線/岩手飯岡駅 歩8分 | ||
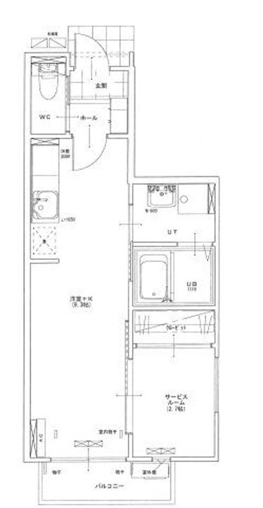
| 間取り | 1SK ※Sは納戸となります。 |
面積 | 29.98m² |
| 間取り詳細 | 洋9.3 納戸 2.7 | 方位 | - |
| 階数/部屋番号 | 1階/地上2階建 | 駐車場 | 無 |
| 特徴 |
|
||
| 設備/条件 | バストイレ別、バルコニー、エアコン、クロゼット、フローリング、TVインターホン、浴室乾燥機、室内洗濯置、シューズボックス、追焚機能浴室、角住戸、温水洗浄便座、洗面所独立、洗面化粧台、即入居可、礼金不要、敷金不要、物置、ネット使用料不要、24時間換気システム、プロパンガス、BS、敷金・礼金不要、IT重説 対応物件 | ||
| 備考 |
合計11.8万円(内訳:礼金(法人契約)5.9万円 敷金(法人契約)5.9万円) 全保連利用必 振替手数料:550円(税込)/月 |
||
| 契約期間 | お問い合わせください。 | ||
|---|---|---|---|
| 入居可能時期 |
即入居可
|
||
| 初期費用 |
お問い合わせください。
|
||
| 住宅保険 | 要 | 現状空室状況 | お問い合わせください。 |
情報提供元:いい部屋ネット大東建託リーシング(株)盛岡店
画像提供元:いい部屋ネット大東建託リーシング(株)盛岡店
※各種情報と現状に差異がある場合は、現状優先となります。取り扱い不動産会社が複数ある場合は、住宅保険等、一部条件が異なる場合もございますので、取扱店舗までご確認下さいませ。
この物件にお問い合わせ
周辺施設
| コンビニ |
セブン‐イレブン 盛岡永井店 ファミリーマート 盛岡永井南店 |
|||
|---|---|---|---|---|
| スーパー |
Aコープ飯岡駅前店 業務スーパー飯岡店 |
|||
| ドラッグストア |
いわて飯岡駅前薬局 薬王堂 盛岡都南店 |
|||
| 保育園 |
さくら保育園 |
|||
|---|---|---|---|---|
| 幼稚園 |
青葉幼稚園 |
|||
| 小学校 |
盛岡市立 永井小学校 |
|||
| 中学校 |
盛岡市立見前中学校 |
|||
※周辺情報は不動産会社から提供された情報ではなく、弊サービスで独自に収集した情報です。
担当者のオススメポイント!
お部屋さがしはいい部屋ネットの大東建託で!
収納はシューズボックス・クロゼットなど豊富なので、衣類や履き物の整理がしやすく便利です。室内設備は浴室乾燥機・洗面所独立などが揃っており、とても充実しています。
トレーフル[1階]の取扱会社情報 1件
| 取扱会社(1) | いい部屋ネット大東建託リーシング(株)盛岡店 (情報提供媒体:SUUMO) | ||
|---|---|---|---|
| 住所 | 岩手県盛岡市津志田 15地割27-5 | ||
| 電話番号 | 019-632-1522 | 免許番号 | 国土交通大臣(2)第9120号 |
| 取引態様 | 仲介 | 物件管理番号 |
100445551434 ※お問い合わせの際には、担当者へ物件管理番号をお伝えください。 |
| 物件に関する情報 |
物件の所在地 : 岩手県盛岡市永井 /
交通の利便 : JR東北本線/岩手飯岡駅 歩8分 /
面積 : 29.98m² /
築年月 : 2020年03月 /
賃料 : 5.9万円 /
管理費又は共益費等 : 3,000円 /
礼金等 : 無料 /
敷金 : 無料、保証金等 : -、 償却、敷引 : - /
住宅総合保険等の損害保険料 : 要 /
その他 : 合計11.8万円(内訳:礼金(法人契約)5.9万円 敷金(法人契約)5.9万円)
全保連利用必 振替手数料:550円(税込)/月
/ 駐車場 : 無
お部屋さがしはいい部屋ネットの大東建託で!
収納はシューズボックス・クロゼットなど豊富なので、衣類や履き物の整理がしやすく便利です。室内設備は浴室乾燥機・洗面所独立などが揃っており、とても充実しています。 |
||
| 所属団体 |
(公財)日本賃貸住宅管理協会会員 (公社)首都圏不動産公正取引協議会加盟 |
||

