東京都大田区矢口1丁目の賃貸マンション
情報公開日:2025/12/14(残り15日)
次回更新日は情報公開日より15日以内
物件画像
画像提供元:株式会社 アップル神奈川/アパマンショップ金沢文庫店
この物件のタグ
この物件にお問い合わせ
東京都大田区矢口1丁目の賃貸マンションの物件情報
| 賃料/管理費等 |
8.5万円(管理費等 1.4万円)
|
||
|---|---|---|---|
| 敷金 | 無料 | 礼金 | 8.5万円 |
| 種別/構造 | マンション/鉄筋コンクリート | 築年月 | 2013年03月 |
| 所在地 |
東京都大田区矢口1丁目
|
||
| 主要交通機関 | 東急多摩川線/武蔵新田 徒歩3分 | ||
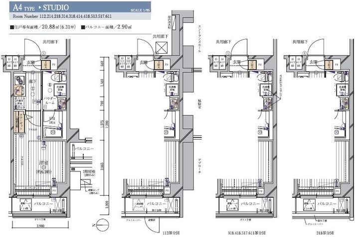
| 間取り | 1K | 面積 | 20.88m² |
| 間取り詳細 | 6.1洋 | 方位 | 西 |
| 階数/部屋番号 | 4階/地上6階建 | 駐車場 | 無し |
| 特徴 |
|
||
| 設備/条件 | エアコン、バス・トイレ別、浴室乾燥機、温水洗浄便座、ペット相談、分譲賃貸、BSアンテナ、CSアンテナ、システムキッチン、ガスコンロ、コンロ二口以上、2階以上の物件、室内洗濯機置場、バルコニー、エレベーター、外観タイル張り、駐輪場あり、バイク置き場あり、都市ガス、オートロック、宅配ボックス | ||
| 備考 |
①短期解約違約金有(1年未満=1ヶ月、半年未満=2ヶ月)②エアコンクリーニング費用(1台あたり16,500円税込み・退去時請求) 保証会社利用必須 オリコフォレントインシュア (オリコフォレントインシュア) オリコフォレントインシュア:家賃総額の50% 収納手数料:330円(税込)/月 鍵交換費用 22000円 更新料:1.5ヶ月 [退去時費用(故意・過失等別途実費):ルームクリーニング費 49,500円] ※物件に関する備考は各社異なりますのでご確認のうえお問い合わせください。 |
||
| 契約期間 | 24ヶ月 | ||
|---|---|---|---|
| 入居可能時期 |
2026年1月中旬
|
||
| 初期費用 |
お問い合わせください。
|
||
| 住宅保険 | 16000円(2年) | 現状空室状況 | お問い合わせください。 |
情報提供元:株式会社 アップル神奈川/アパマンショップ金沢文庫店
画像提供元:株式会社 アップル神奈川/アパマンショップ金沢文庫店
※各種情報と現状に差異がある場合は、現状優先となります。取り扱い不動産会社が複数ある場合は、住宅保険等、一部条件が異なる場合もございますので、取扱店舗までご確認下さいませ。
この物件にお問い合わせ
周辺施設
| コンビニ |
セブンイレブン 大田区下丸子1丁目店 (190m) セブン‐イレブン 大田区千鳥2丁目店 (277m) |
|||
|---|---|---|---|---|
| スーパー |
マルエツ 新田店 (204m) サミット株式会社 大田千鳥町店 (486m) |
|||
| ドラッグストア |
くすりセイジョー 武蔵新田店 (86m) 日本堂薬局 (123m) |
|||
| 保育園 |
千鳥さくら保育園 (227m) |
|||
|---|---|---|---|---|
| 幼稚園 |
丸子幼稚園 (172m) |
|||
| 小学校 |
大田区立矢口西小学校 (321m) |
|||
| 中学校 |
大田区立矢口中学校 (629m) |
|||
※周辺情報は不動産会社から提供された情報ではなく、弊サービスで独自に収集した情報です。
担当者のオススメポイント!
まずはお気軽にお問合せ下さい♪
東京都大田区矢口1丁目の賃貸マンションの取扱会社情報 5件
| 取扱会社(1) | 株式会社 アップル神奈川 アパマンショップ金沢文庫店 | ||
|---|---|---|---|
| 住所 | 神奈川県横浜市金沢区谷津町359 | ||
| 電話番号 | 045-370-8150 | 免許番号 | 神奈川県知事(10)第13668号 |
| 取引態様 | 仲介 | 物件管理番号 |
92295727 ※お問い合わせの際には、担当者へ物件管理番号をお伝えください。 |
| 物件に関する情報 |
物件の所在地 : 東京都大田区矢口1丁目 /
交通の利便 : 東急多摩川線/武蔵新田 徒歩3分 /
面積 : 20.88m² /
築年月 : 2013年03月 /
賃料 : 8.5万円 /
管理費又は共益費等 : 1.4万円 /
礼金等 : 1ヶ月 /
敷金 : 無料、保証金等 : -、 償却、敷引 : - /
住宅総合保険等の損害保険料 : 16000円(2年) /
その他 : ①短期解約違約金有(1年未満=1ヶ月、半年未満=2ヶ月)②エアコンクリーニング費用(1台あたり16,500円税込み・退去時請求) 保証会社利用必須 オリコフォレントインシュア (オリコフォレントインシュア) オリコフォレントインシュア:家賃総額の50% 収納手数料:330円(税込)/月 鍵交換費用 22000円
更新料:1.5ヶ月
[退去時費用(故意・過失等別途実費):ルームクリーニング費 49,500円]
/ 駐車場 : 無し
まずはお気軽にお問合せ下さい♪
|
||
| 所属団体 |
(公社)神奈川県宅地建物取引業協会 (公社) 首都圏不動産公正取引協議会加盟 - |
||
| 取扱会社(2) | 株式会社 ゼント アパマンショップ大井町駅前店 | ||
|---|---|---|---|
| 住所 | 東京都品川区東大井5丁目17-4 | ||
| 電話番号 | 03-6712-8417 | 免許番号 | 東京都知事(5)第83411号 |
| 取引態様 | 仲介 | 物件管理番号 |
92295727 ※お問い合わせの際には、担当者へ物件管理番号をお伝えください。 |
| 物件に関する情報 |
物件の所在地 : 東京都大田区矢口1丁目 /
交通の利便 : 東急多摩川線/武蔵新田 徒歩3分 /
面積 : 20.88m² /
築年月 : 2013年03月 /
賃料 : 8.5万円 /
管理費又は共益費等 : 1.4万円 /
礼金等 : 1ヶ月 /
敷金 : 無料、保証金等 : -、 償却、敷引 : - /
住宅総合保険等の損害保険料 : 16000円(2年) /
その他 : ①短期解約違約金有(1年未満=1ヶ月、半年未満=2ヶ月)②エアコンクリーニング費用(1台あたり16,500円税込み・退去時請求) 保証会社利用必須 オリコフォレントインシュア (オリコフォレントインシュア) オリコフォレントインシュア:家賃総額の50% 収納手数料:330円(税込)/月 鍵交換費用 22000円
更新料:1.5ヶ月
[退去時費用(故意・過失等別途実費):ルームクリーニング費 49,500円]
/ 駐車場 : 無し
お部屋探しはアパマンショップ大井町駅前店にお任せください!!
|
||
| 所属団体 |
(公社)全日本不動産協会東京都本部 (公社) 首都圏不動産公正取引協議会加盟 - |
||
| 取扱会社(3) | 株式会社 アップル アパマンショップ目黒西口店 | ||
|---|---|---|---|
| 住所 | 東京都品川区上大崎2丁目27-1 | ||
| 電話番号 | 03-6867-1010 | 免許番号 | 国土交通大臣(5)第6971号 |
| 取引態様 | 仲介 | 物件管理番号 |
92295727 ※お問い合わせの際には、担当者へ物件管理番号をお伝えください。 |
| 物件に関する情報 |
物件の所在地 : 東京都大田区矢口1丁目 /
交通の利便 : 東急多摩川線/武蔵新田 徒歩3分 /
面積 : 20.88m² /
築年月 : 2013年03月 /
賃料 : 8.5万円 /
管理費又は共益費等 : 1.4万円 /
礼金等 : 1ヶ月 /
敷金 : 無料、保証金等 : -、 償却、敷引 : - /
住宅総合保険等の損害保険料 : 16000円(2年) /
その他 : ①短期解約違約金有(1年未満=1ヶ月、半年未満=2ヶ月)②エアコンクリーニング費用(1台あたり16,500円税込み・退去時請求) 保証会社利用必須 オリコフォレントインシュア (オリコフォレントインシュア) オリコフォレントインシュア:家賃総額の50% 収納手数料:330円(税込)/月 鍵交換費用 22000円
更新料:1.5ヶ月
[退去時費用(故意・過失等別途実費):ルームクリーニング費 49,500円]
/ 駐車場 : 無し
お問い合わせはこちらまで!!【】
|
||
| 所属団体 |
(公社)東京都宅地建物取引協会 (公社) 首都圏不動産公正取引協議会加盟 - |
||
| 取扱会社(4) | 株式会社 アップル神奈川 アパマンショップ二俣川店 | ||
|---|---|---|---|
| 住所 | 神奈川県横浜市旭区本村町101-10 | ||
| 電話番号 | 045-744-8674 | 免許番号 | 神奈川県知事(10)第13668号 |
| 取引態様 | 仲介 | 物件管理番号 |
92295727 ※お問い合わせの際には、担当者へ物件管理番号をお伝えください。 |
| 物件に関する情報 |
物件の所在地 : 東京都大田区矢口1丁目 /
交通の利便 : 東急多摩川線/武蔵新田 徒歩3分 /
面積 : 20.88m² /
築年月 : 2013年03月 /
賃料 : 8.5万円 /
管理費又は共益費等 : 1.4万円 /
礼金等 : 1ヶ月 /
敷金 : 無料、保証金等 : -、 償却、敷引 : - /
住宅総合保険等の損害保険料 : 16000円(2年) /
その他 : ①短期解約違約金有(1年未満=1ヶ月、半年未満=2ヶ月)②エアコンクリーニング費用(1台あたり16,500円税込み・退去時請求) 保証会社利用必須 オリコフォレントインシュア (オリコフォレントインシュア) オリコフォレントインシュア:家賃総額の50% 収納手数料:330円(税込)/月 鍵交換費用 22000円
更新料:1.5ヶ月
[退去時費用(故意・過失等別途実費):ルームクリーニング費 49,500円]
/ 駐車場 : 無し
【お部屋探しはアパマンショップへ♪予約なしも大歓迎♪】
|
||
| 所属団体 |
(公社)神奈川県宅地建物取引業協会 (公社) 首都圏不動産公正取引協議会加盟 - |
||
| 取扱会社(5) | 株式会社 アップル神奈川 アパマンショップ武蔵小杉JR口店 | ||
|---|---|---|---|
| 住所 | 神奈川県川崎市中原区新丸子東2丁目907 | ||
| 電話番号 | 044-920-8513 | 免許番号 | 神奈川県知事(10)第13668号 |
| 取引態様 | 仲介 | 物件管理番号 |
92295727 ※お問い合わせの際には、担当者へ物件管理番号をお伝えください。 |
| 物件に関する情報 |
物件の所在地 : 東京都大田区矢口1丁目 /
交通の利便 : 東急多摩川線/武蔵新田 徒歩3分 /
面積 : 20.88m² /
築年月 : 2013年03月 /
賃料 : 8.5万円 /
管理費又は共益費等 : 1.4万円 /
礼金等 : 1ヶ月 /
敷金 : 無料、保証金等 : -、 償却、敷引 : - /
住宅総合保険等の損害保険料 : 16000円(2年) /
その他 : ①短期解約違約金有(1年未満=1ヶ月、半年未満=2ヶ月)②エアコンクリーニング費用(1台あたり16,500円税込み・退去時請求) 保証会社利用必須 オリコフォレントインシュア (オリコフォレントインシュア) オリコフォレントインシュア:家賃総額の50% 収納手数料:330円(税込)/月 鍵交換費用 22000円
更新料:1.5ヶ月
[退去時費用(故意・過失等別途実費):ルームクリーニング費 49,500円]
/ 駐車場 : 無し
【ご予約無しのご来店も歓迎♪お気軽にお問い合わせください♪
|
||
| 所属団体 |
(公社)神奈川県宅地建物取引業協会 (公社) 首都圏不動産公正取引協議会加盟 - |
||

