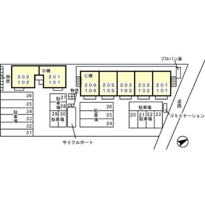
サニーコート杉本 C[2階]
情報公開日:2026/05/05(残り15日)
次回更新日は情報公開日より15日以内
物件画像
画像提供元:森川不動産 株式会社/アパマンショップ越前店
この物件のタグ
サニーコート杉本 C[2階]の物件情報
| 賃料/管理費等 |
5.1万円(管理費等 4,500円)
|
||
|---|---|---|---|
| 敷金 | 3.0万円 | 礼金 | 6.0万円 |
| 種別/構造 | アパート/軽量鉄骨 | 築年月 | 2006年03月 |
| 所在地 |
福井県鯖江市杉本町
|
||
| 主要交通機関 | 福井鉄道福武線/神明 バス26分 立待線/杉本バス停から徒歩9分 | ||
| 間取り | 1LDK | 面積 | 40.07m² |
| 間取り詳細 | 11.5LDK、6洋 | 方位 | 南東 |
| 階数/部屋番号 | 2階/地上2階建 | 駐車場 | 空有 5,500円 (縦列2台5500円) |
| 特徴 |
|
||
| 設備/条件 | エアコン、バス・トイレ別、追い焚き、浴室乾燥機、独立洗面台、温水洗浄便座、CATV、システムキッチン、ガスコンロ、2階以上の物件、最上階の物件、南向き、フローリング、室内洗濯機置場、バルコニー、駐車場あり、駐輪場あり、プロパンガス | ||
| 備考 |
LPガス料金はご契約前にLPガス事業者にご確認いただけます。 ルームクリーニング料金にエアコンクリーニング費用を含みます。 保証会社利用必須 株式会社イントラスト 機関保証加入必須。初回保証料35000円、月額保証料賃料等総額の1%+800円/月(その他商品あり) 室内清掃費用 60500円/カードキー発行料 16500円 更新料:51000円 [退去時費用(故意・過失等別途実費):退去費用実費精算] ※物件に関する備考は各社異なりますのでご確認のうえお問い合わせください。 |
||
| 契約期間 | 24ヶ月 | ||
|---|---|---|---|
| 入居可能時期 |
お問い合わせください。
|
||
| 初期費用 |
お問い合わせください。
|
||
| 住宅保険 | お問い合わせください。 | 現状空室状況 | お問い合わせください。 |
情報提供元:森川不動産 株式会社/アパマンショップ越前店
画像提供元:森川不動産 株式会社/アパマンショップ越前店
※各種情報と現状に差異がある場合は、現状優先となります。取り扱い不動産会社が複数ある場合は、住宅保険等、一部条件が異なる場合もございますので、取扱店舗までご確認下さいませ。
この物件にお問い合わせ
周辺施設
| コンビニ |
ファミリーマート 鯖江ただす店 ファミリーマート 鯖江丸山町店 |
|||
|---|---|---|---|---|
| スーパー |
株式会社バロー 神明店 |
|||
| ドラッグストア |
ディスカウントドラッグコスモス 丸山店 クスリのアオキ 鯖江丸山店 |
|||
| 保育園 |
鯖江市 立待保育所 |
|||
|---|---|---|---|---|
| 幼稚園 |
鯖江市 神明幼稚園 |
|||
| 小学校 |
鯖江市立待小学校 |
|||
| 中学校 |
鯖江市立中央中学校 |
|||
※周辺情報は不動産会社から提供された情報ではなく、弊サービスで独自に収集した情報です。
担当者のオススメポイント!
鯖江市のお部屋探しはアパマンショップ越前店にお任せください。
電話でお問い合わせご希望の方
三谷不動産株式会社 アパマンショップ福井中央店
営業時間: 10:00〜17:30 定休日: 水曜
森川不動産 株式会社 アパマンショップ越前店
営業時間: 10:00〜18:00 定休日: 水曜
森川不動産 株式会社 アパマンショップ福井サン二の宮店
営業時間: 10:00〜18:00 定休日: 水曜
森川不動産 株式会社 アパマンショップ福井店
営業時間: 10:00〜18:00 定休日: 水曜
- ※電話経由でのお問い合せは、お祝い金プレゼントキャンペーンの適用になりませんのでご注意ください。
- ※電話でお問い合わせする場合は、光IP電話、及びIP電話からはご利用になれません。不動産会社の方からの電話番号によるお問合せはお断りしております。
サニーコート杉本 C[2階]の取扱会社情報 8件
| 取扱会社(1) | 森川不動産 株式会社 アパマンショップ越前店 | ||
|---|---|---|---|
| 住所 | 福井県越前市横市町28−27−1 | ||
| 電話番号 | 0778-24-2900 | 免許番号 | 福井県知事(15)第335号 |
| 取引態様 | 仲介 | 物件管理番号 |
1000934269 ※お問い合わせの際には、担当者へ物件管理番号をお伝えください。 |
| 連絡先 | 0037-6008-5210 | ||
| 物件に関する情報 |
物件の所在地 : 福井県鯖江市杉本町 /
交通の利便 : 福井鉄道福武線/神明 バス26分 立待線/杉本バス停から徒歩9分 /
面積 : 40.07m² /
築年月 : 2006年03月 /
賃料 : 5.1万円 /
管理費又は共益費等 : 4,500円 /
礼金等 : 6.0万円 /
敷金 : 3.0万円、保証金等 : -、 償却、敷引 : - /
住宅総合保険等の損害保険料 : - /
その他 : LPガス料金はご契約前にLPガス事業者にご確認いただけます。 ルームクリーニング料金にエアコンクリーニング費用を含みます。 保証会社利用必須 株式会社イントラスト 機関保証加入必須。初回保証料35000円、月額保証料賃料等総額の1%+800円/月(その他商品あり) 室内清掃費用 60500円/カードキー発行料 16500円
更新料:51000円
[退去時費用(故意・過失等別途実費):退去費用実費精算]
/ 駐車場 : 空有
5,500円
(縦列2台5500円)
鯖江市のお部屋探しはアパマンショップ越前店にお任せください。
|
||
| 所属団体 |
(公社) 福井県宅地建物取引業協会 北陸不動産公正取引協議会加盟 - |
||
| 取扱会社(2) | 森川不動産 株式会社 アパマンショップ福井店 | ||
|---|---|---|---|
| 住所 | 福井県福井市毛矢2丁目11−5 | ||
| 電話番号 | 0776-36-8787 | 免許番号 | 福井県知事(15)第335号 |
| 取引態様 | 仲介 | 物件管理番号 |
1000934269 ※お問い合わせの際には、担当者へ物件管理番号をお伝えください。 |
| 連絡先 | 0037-6008-7829 | ||
| 物件に関する情報 |
物件の所在地 : 福井県鯖江市杉本町 /
交通の利便 : 福井鉄道福武線/神明 バス26分 立待線/杉本バス停から徒歩9分 /
面積 : 40.07m² /
築年月 : 2006年03月 /
賃料 : 5.1万円 /
管理費又は共益費等 : 4,500円 /
礼金等 : 6.0万円 /
敷金 : 3.0万円、保証金等 : -、 償却、敷引 : - /
住宅総合保険等の損害保険料 : - /
その他 : LPガス料金はご契約前にLPガス事業者にご確認いただけます。 ルームクリーニング料金にエアコンクリーニング費用を含みます。 保証会社利用必須 株式会社イントラスト 機関保証加入必須。初回保証料35000円、月額保証料賃料等総額の1%+800円/月(その他商品あり) 室内清掃費用 60500円/カードキー発行料 16500円
更新料:51000円
[退去時費用(故意・過失等別途実費):退去費用実費精算]
/ 駐車場 : 空有
5,500円
(縦列2台5500円)
鯖江市のお部屋探しはアパマンショップ福井店にお任せください。
|
||
| 所属団体 |
(公社) 福井県宅地建物取引業協会 北陸不動産公正取引協議会加盟 - |
||
| 取扱会社(3) | いい部屋ネット福井二の宮店(株)いい部屋ドットコム (情報提供媒体:SUUMO) | ||
|---|---|---|---|
| 住所 | 福井県福井市経田1-207 | ||
| 電話番号 | 0776-89-1077 | 免許番号 | 福井県知事(1)第1750号 |
| 取引態様 | 仲介 | 物件管理番号 |
100504879967 ※お問い合わせの際には、担当者へ物件管理番号をお伝えください。 |
| 物件に関する情報 |
物件の所在地 : 福井県鯖江市杉本町 /
交通の利便 : 福井鉄道福武線/神明駅 歩17分、福井鉄道福武線/鳥羽中駅 歩23分、福井鉄道福武線/三十八社駅 歩32分 /
面積 : 40.07m² /
築年月 : 2006年03月 /
賃料 : 5.1万円 /
管理費又は共益費等 : 4,500円 /
礼金等 : 6.0万円 /
敷金 : 3.0万円、保証金等 : -、 償却、敷引 : - /
住宅総合保険等の損害保険料 : 要 /
その他 : 合計1.65万円(内訳:鍵交換代1.65万円)
更新料 新賃料1.00ヶ月分 室内清掃費用 60500円
普通借家 2年
保証会社利用必 機関保証加入必須。初回保証料35000円、月額保証料賃料等総額の1%+800円/月(商品あり) 65歳以上の方の契約は定期借家契約(2年再契約型)、機関保証の加入が必須となります(初回保証料:月額賃料等合計額×100% 更新:2万円/1年)
/ 駐車場 : 有(敷地内)
敷地内5500円
収納はシューズボックス・クロゼットなど豊富です!
来客時にはTVインターホンで訪問者の顔を確認することができ、室内設備は浴室乾燥機・洗面化粧台など大変充実しております。 |
||
| 取扱会社(4) | 三谷不動産株式会社 アパマンショップ福井中央店 | ||
|---|---|---|---|
| 住所 | 福井県福井市中央3丁目1−5 | ||
| 電話番号 | 0776-23-2313 | 免許番号 | 国土交通大臣(17)第19号 |
| 取引態様 | 仲介 | 物件管理番号 |
1000934269 ※お問い合わせの際には、担当者へ物件管理番号をお伝えください。 |
| 連絡先 | 0037-6008-0287 | ||
| 物件に関する情報 |
物件の所在地 : 福井県鯖江市杉本町 /
交通の利便 : 福井鉄道福武線/神明 バス26分 立待線/杉本バス停から徒歩9分 /
面積 : 40.07m² /
築年月 : 2006年03月 /
賃料 : 5.1万円 /
管理費又は共益費等 : 4,500円 /
礼金等 : 6.0万円 /
敷金 : 3.0万円、保証金等 : -、 償却、敷引 : - /
住宅総合保険等の損害保険料 : - /
その他 : LPガス料金はご契約前にLPガス事業者にご確認いただけます。 ルームクリーニング料金にエアコンクリーニング費用を含みます。 保証会社利用必須 株式会社イントラスト 機関保証加入必須。初回保証料35000円、月額保証料賃料等総額の1%+800円/月(その他商品あり) 室内清掃費用 60500円/カードキー発行料 16500円
更新料:51000円
[退去時費用(故意・過失等別途実費):退去費用実費精算]
/ 駐車場 : 空有
5,500円
(縦列2台5500円)
|
||
| 所属団体 |
(公社)福井県宅地建物取引業協会 北陸不動産公正取引協議会加盟 - |
||
| 取扱会社(5) | いい部屋ネット大東建託リーシング(株)越前店 (情報提供媒体:SUUMO) | ||
|---|---|---|---|
| 住所 | 福井県越前市横市町 1-6 くにたか山成ビル1階 | ||
| 電話番号 | 0778-22-7988 | 免許番号 | 国土交通大臣(2)第9120号 |
| 取引態様 | 仲介 | 物件管理番号 |
100469577385 ※お問い合わせの際には、担当者へ物件管理番号をお伝えください。 |
| 物件に関する情報 |
物件の所在地 : 福井県鯖江市杉本町 /
交通の利便 : 福井鉄道福武線/神明駅 バス26分 (バス停)立待線/杉本 歩9分 /
面積 : 40.07m² /
築年月 : 2006年03月 /
賃料 : 5.1万円 /
管理費又は共益費等 : 4,500円 /
礼金等 : 6.0万円 /
敷金 : 3.0万円、保証金等 : -、 償却、敷引 : - /
住宅総合保険等の損害保険料 : 要 /
その他 : LPガス料金はご契約前にLPガス事業者にご確認いただけます。 ルームクリーニング料金にエアコンクリーニング費用を含みます。 本貸室の電気は、貸主から配給されます。
合計1.65万円(内訳:その他費用契約金1.65万円)
更新料 51000円 室内清掃費用 60500円
子供可/事務所利用不可
保証会社利用必 イントラスト 機関保証加入必須。初回保証料35000円、月額保証料賃料等総額の1%+800円/月(その他商品あり)
/ 駐車場 : 有(敷地内)
敷地内5500円
お部屋さがしはいい部屋ネットの大東建託で!
怪しい来訪者が来てもインターホンを通して確認できるので防犯対策につながります。室内設備は浴室乾燥機・洗面所独立などが揃っているので、快適に過ごしやすいお部屋になります。CATV対応のアパートです。 |
||
| 所属団体 |
(公財)日本賃貸住宅管理協会会員 (公社)首都圏不動産公正取引協議会加盟 |
||
| 取扱会社(6) | 森川不動産 株式会社 アパマンショップ福井サン二の宮店 | ||
|---|---|---|---|
| 住所 | 福井県福井市経栄1丁目701 | ||
| 電話番号 | 0776-23-0050 | 免許番号 | 福井県知事(15)第335号 |
| 取引態様 | 仲介 | 物件管理番号 |
1000934269 ※お問い合わせの際には、担当者へ物件管理番号をお伝えください。 |
| 連絡先 | 0037-6008-5267 | ||
| 物件に関する情報 |
物件の所在地 : 福井県鯖江市杉本町 /
交通の利便 : 福井鉄道福武線/神明 バス26分 立待線/杉本バス停から徒歩9分 /
面積 : 40.07m² /
築年月 : 2006年03月 /
賃料 : 5.1万円 /
管理費又は共益費等 : 4,500円 /
礼金等 : 6.0万円 /
敷金 : 3.0万円、保証金等 : -、 償却、敷引 : - /
住宅総合保険等の損害保険料 : - /
その他 : LPガス料金はご契約前にLPガス事業者にご確認いただけます。 ルームクリーニング料金にエアコンクリーニング費用を含みます。 保証会社利用必須 株式会社イントラスト 機関保証加入必須。初回保証料35000円、月額保証料賃料等総額の1%+800円/月(その他商品あり) 室内清掃費用 60500円/カードキー発行料 16500円
更新料:51000円
[退去時費用(故意・過失等別途実費):退去費用実費精算]
/ 駐車場 : 空有
5,500円
(縦列2台5500円)
|
||
| 所属団体 |
(公社)福井県宅地建物取引業協会 北陸不動産公正取引協議会加盟 - |
||
| 取扱会社(7) | いい部屋ネット大東建託リーシング(株)福井店 (情報提供媒体:SUUMO) | ||
|---|---|---|---|
| 住所 | 福井県福井市日之出3-10-11 | ||
| 電話番号 | 0776-21-6525 | 免許番号 | 国土交通大臣(2)第9120号 |
| 取引態様 | 仲介 | 物件管理番号 |
100471150123 ※お問い合わせの際には、担当者へ物件管理番号をお伝えください。 |
| 物件に関する情報 |
物件の所在地 : 福井県鯖江市杉本町 /
交通の利便 : 福井鉄道福武線/神明駅 バス26分 (バス停)立待線/杉本 歩9分 /
面積 : 40.07m² /
築年月 : 2006年03月 /
賃料 : 5.1万円 /
管理費又は共益費等 : 4,500円 /
礼金等 : 6.0万円 /
敷金 : 3.0万円、保証金等 : -、 償却、敷引 : - /
住宅総合保険等の損害保険料 : 要 /
その他 : LPガス料金はご契約前にLPガス事業者にご確認いただけます。 ルームクリーニング料金にエアコンクリーニング費用を含みます。 本貸室の電気は、貸主から配給されます。
合計1.65万円(内訳:その他費用契約金1.65万円)
更新料 51000円 室内清掃費用 60500円
子供可/事務所利用不可
保証会社利用必 イントラスト 機関保証加入必須。初回保証料35000円、月額保証料賃料等総額の1%+800円/月(その他商品あり)
/ 駐車場 : 有(敷地内)
敷地内5500円
お部屋さがしはいい部屋ネットの大東建託で!
追い焚き機能や浴室換気乾燥機付で便利です♪グリル付ガスコンロあり!室内物干しがあり雨の日のお洗濯に便利です☆収納はクロゼット・シューズボックスなど豊富なので、広々と空間を利用することも可能です。 |
||
| 所属団体 |
(公財)日本賃貸住宅管理協会会員 (公社)首都圏不動産公正取引協議会加盟 |
||
| 取扱会社(8) | (株)住みかえ情報館鯖江営業所 (情報提供媒体:SUUMO) | ||
|---|---|---|---|
| 住所 | 福井県鯖江市東鯖江1-1-3 | ||
| 電話番号 | 0778-54-0440 | 免許番号 | 福井県知事(9)第937号 |
| 取引態様 | 仲介 | 物件管理番号 |
100492808186 ※お問い合わせの際には、担当者へ物件管理番号をお伝えください。 |
| 物件に関する情報 |
物件の所在地 : 福井県鯖江市杉本町 /
交通の利便 : 福井鉄道福武線/神明駅 歩17分 /
面積 : 40.07m² /
築年月 : 2006年03月 /
賃料 : 5.1万円 /
管理費又は共益費等 : 4,500円 /
礼金等 : 6.0万円 /
敷金 : 3.0万円、保証金等 : -、 償却、敷引 : - /
住宅総合保険等の損害保険料 : - /
その他 : 合計11.2万円(内訳:初回保証料(ダイワ)3.5万円/他7.7万円)
口座振替手数料月額100円/税込
保証会社利用可 応相談
/ 駐車場 : 有(敷地内)
敷地内5500円
綺麗な1LDKです★パノラマは別のお部屋です。
月額保証料は賃料等総額の1%+800円/月 |
||
| 所属団体 |
(公社)福井県宅地建物取引業協会会員 北陸不動産公正取引協議会加盟 |
||

