[一戸建] 埼玉県川越市大字的場 の賃貸【埼玉県 / 川越市】
情報公開日:2025/12/15(残り15日)
次回更新日は2025/12/22
物件画像
画像提供元:T-GROUP合同会社HILO HOUSE
この物件のタグ
この物件にお問い合わせ
[一戸建] 埼玉県川越市大字的場 の賃貸【埼玉県 / 川越市】の物件情報
| 賃料/管理費等 |
14.3万円(管理費等 -)
|
||
|---|---|---|---|
| 敷金 | 28.6万円 | 礼金 | 14.3万円 |
| 種別/構造 | 一戸建/木造 | 築年月 | 新築(2025年08月) |
| 敷金積み増し | ペット飼育の場合敷金3ヶ月(総額) | ||
| 所在地 |
埼玉県川越市大字的場
|
||
| 主要交通機関 |
JR川越線/的場駅 歩23分 JR川越線/笠幡駅 歩23分 東武東上線/霞ヶ関駅 歩37分 |
||
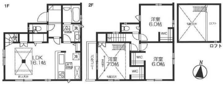
| 間取り | 3LDK | 面積 | 86.94m² |
| 間取り詳細 | 洋7 洋6 洋6 LDK16.1 | 方位 | 西 |
| 階数/部屋番号 | 1-2階/地上2階建 | 駐車場 | 付無料/駐2台可 |
| 特徴 |
|
||
| 設備/条件 | バストイレ別、バルコニー、エアコン、ガスコンロ対応、クロゼット、フローリング、シャワー付洗面台、TVインターホン、浴室乾燥機、室内洗濯置、シューズボックス、システムキッチン、追焚機能浴室、角住戸、温水洗浄便座、脱衣所、洗面所独立、洗面化粧台、駐輪場、宅配ボックス、即入居可、閑静な住宅地、最上階、3口以上コンロ、対面式キッチン、ペット相談、全居室収納、ロフト、全居室洋室、振分、ウォークインクロゼット、保証人不要、駐車2台可、二人入居相談、バイク置場、防犯シャッター、全居室フローリング、玄関ホール、3面採光、エアコン2台、LDK15畳以上、駐車場2台無料、浄水器、食器洗乾燥機、床下収納、24時間換気システム、楽器相談、複層ガラス、トイレ2ヶ所、学生相談、浴室1坪以上、3方角住戸、四方角部屋、準耐火構造、平面駐車場、全居室6畳以上、食品庫、都市ガス、シャッター、室内物干機 | ||
| 備考 |
更新料 新賃料1.00ヶ月分 口座振替システム利用料 月額550円 二人入居可/子供可/ペット相談/楽器相談 定期借家 2年 保証会社利用必 Casa 初回保証委託料:賃料合計の50% 年間保証料:10 000円 月額決済料:550円(税込) |
||
| 契約期間 | お問い合わせください。 | ||
|---|---|---|---|
| 入居可能時期 |
即入居可
|
||
| 初期費用 |
お問い合わせください。
|
||
| 住宅保険 | 1.8万円2年 | 現状空室状況 | お問い合わせください。 |
情報提供元:T-GROUP合同会社HILO HOUSE
画像提供元:T-GROUP合同会社HILO HOUSE
※各種情報と現状に差異がある場合は、現状優先となります。取り扱い不動産会社が複数ある場合は、住宅保険等、一部条件が異なる場合もございますので、取扱店舗までご確認下さいませ。
この物件にお問い合わせ
周辺施設
| コンビニ |
ローソン 鶴ヶ島松ヶ丘三丁目店 |
|||
|---|---|---|---|---|
| スーパー |
株式会社ベルク 的場店 ヤオコー 川越的場店 |
|||
| ドラッグストア |
ウエルシア薬局川越的場店 海の子薬局 |
|||
| 保育園 |
さくらんぼ 第二保育園 |
|||
|---|---|---|---|---|
| 幼稚園 |
かすみ幼稚園 |
|||
| 小学校 |
川越市立 霞ケ関北小学校 |
|||
| 中学校 |
川越市立霞ケ関中学校 |
|||
※周辺情報は不動産会社から提供された情報ではなく、弊サービスで独自に収集した情報です。
担当者のオススメポイント!
ペット可(中型犬2匹まで、猫不可)
室内設備は洗面所独立・浴室乾燥機・食器洗乾燥機などが揃っており、とても充実しています。「BLLOMING MAISON川越市的場3号棟」の物件情報をお探しならお気軽にお問い合わせ下さい。
[一戸建] 埼玉県川越市大字的場 の賃貸【埼玉県 / 川越市】の取扱会社情報 1件
| 取扱会社(1) | T-GROUP合同会社HILO HOUSE (情報提供媒体:SUUMO) | ||
|---|---|---|---|
| 住所 | 埼玉県川越市脇田町 27-3 PONOビル 2FA | ||
| 電話番号 | 049-228-5550 | 免許番号 | 埼玉県知事(1)第23759号 |
| 取引態様 | 仲介 | 物件管理番号 |
100459445243 ※お問い合わせの際には、担当者へ物件管理番号をお伝えください。 |
| 物件に関する情報 |
物件の所在地 : 埼玉県川越市大字的場 /
交通の利便 : JR川越線/的場駅 歩23分、JR川越線/笠幡駅 歩23分、東武東上線/霞ヶ関駅 歩37分 /
面積 : 86.94m² /
築年月 : 新築(2025年08月) /
賃料 : 14.3万円 /
管理費又は共益費等 : - /
礼金等 : 1ヶ月 /
敷金 : 2ヶ月、保証金等 : -、 償却、敷引 : - /
住宅総合保険等の損害保険料 : 1.8万円2年 /
その他 : 更新料 新賃料1.00ヶ月分 口座振替システム利用料 月額550円
二人入居可/子供可/ペット相談/楽器相談
定期借家 2年
保証会社利用必 Casa 初回保証委託料:賃料合計の50% 年間保証料:10 000円 月額決済料:550円(税込)
/ 駐車場 : 付無料/駐2台可
ペット可(中型犬2匹まで、猫不可)
室内設備は洗面所独立・浴室乾燥機・食器洗乾燥機などが揃っており、とても充実しています。「BLLOMING MAISON川越市的場3号棟」の物件情報をお探しならお気軽にお問い合わせ下さい。 |
||
| 所属団体 |
(公社)全日本不動産協会埼玉県本部会員 (公社)首都圏不動産公正取引協議会加盟 |
||

