メゾンベルV[1階]
情報公開日:2025/10/01(残り15日)
次回更新日は情報公開日より15日以内
物件画像
画像提供元:スマイファミリー 大宮店(株)セレンホーム
この物件のタグ
この物件にお問い合わせ
メゾンベルV[1階]の物件情報
| 賃料/管理費等 |
4.2万円(管理費等 3,000円)
|
||
|---|---|---|---|
| 敷金 | 無料 | 礼金 | 無料 |
| 種別/構造 | アパート/軽量鉄骨 | 築年月 | 1988年10月 |
| 所在地 |
埼玉県桶川市鴨川1
|
||
| 主要交通機関 |
JR高崎線/桶川駅 歩11分 JR高崎線/北上尾駅 歩33分 JR高崎線/上尾駅 歩53分 |
||
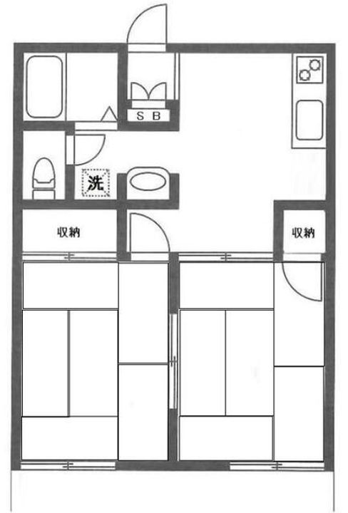
| 間取り | 2DK | 面積 | 39.04m² |
| 間取り詳細 | 和6 和6 DK5.0 | 方位 | - |
| 階数/部屋番号 | 1階/地上2階建 | 駐車場 | 無 |
| 特徴 |
|
||
| 設備/条件 | バストイレ別、エアコン、ガスコンロ対応、室内洗濯置、シューズボックス、角住戸、2口コンロ、CATV、即入居可、礼金不要、2面採光、敷金不要、保証人不要、仲介手数料不要、初期費用10万円以下、都市ガス、BS、敷金・礼金不要、保証会社利用可 | ||
| 備考 |
【店頭へ初回ご来店・お問合わせのお客様、当物件限定、仲介手数料0円】 経年劣化による修繕などで掲載している写真や設備などと実際の設備が 異なる場合があります。 お問い合わせやご契約の際は、その点にご留意頂き現状優先での お貸出しになる事をご了承ください。※退去時クリーニング費用(退去時精算・借主負担)入居審査事前相談可能(外国人可、生活保護など)※短期解約違約金有 合計1.98万円(内訳:鍵交換代1.98万円) 更新料 新賃料1.00ヶ月分 二人入居可 普通借家 2年 保証会社利用必 指定の保証会社(初期費用22500円・年間保証料10000円) |
||
| 契約期間 | お問い合わせください。 | ||
|---|---|---|---|
| 入居可能時期 |
即入居可
|
||
| 初期費用 |
お問い合わせください。
|
||
| 住宅保険 | 1.9万円2年 | 現状空室状況 | お問い合わせください。 |
情報提供元:スマイファミリー 大宮店(株)セレンホーム
画像提供元:スマイファミリー 大宮店(株)セレンホーム
※各種情報と現状に差異がある場合は、現状優先となります。取り扱い不動産会社が複数ある場合は、住宅保険等、一部条件が異なる場合もございますので、取扱店舗までご確認下さいませ。
この物件にお問い合わせ
周辺施設
| コンビニ |
ローソン 桶川下日出谷南店 ファミリーマートTKS桶川若宮店 |
|||
|---|---|---|---|---|
| スーパー |
スーパー丸清 桶川マイン 東武ストア |
|||
| ドラッグストア |
ドラッグみなみ桶川店 天命門薬局 |
|||
| 保育園 |
桶川市立 鴨川保育所 |
|||
|---|---|---|---|---|
| 幼稚園 |
ときわ幼稚園 |
|||
| 小学校 |
桶川市立桶川西小学校 |
|||
| 中学校 |
桶川市立桶川中学校 |
|||
※周辺情報は不動産会社から提供された情報ではなく、弊サービスで独自に収集した情報です。
担当者のオススメポイント!
【店頭へ初回ご来店のお客様、当物件限定、仲介手数料0円】
当物件は初期費用のクレジットカード決済や分割が可能になります。また入居審査や入居希望日、初期費用のご相談もお気軽にお問合せください。
メゾンベルV[1階]の取扱会社情報 1件
| 取扱会社(1) | スマイファミリー 大宮店(株)セレンホーム (情報提供媒体:SUUMO) | ||
|---|---|---|---|
| 住所 | 埼玉県さいたま市中央区上落合9-8-12 エクセレント与野201 | ||
| 電話番号 | 048-764-9596 | 免許番号 | 埼玉県知事(1)第25681号 |
| 取引態様 | 仲介 | 物件管理番号 |
100453435159 ※お問い合わせの際には、担当者へ物件管理番号をお伝えください。 |
| 物件に関する情報 |
物件の所在地 : 埼玉県桶川市鴨川1 /
交通の利便 : JR高崎線/桶川駅 歩11分、JR高崎線/北上尾駅 歩33分、JR高崎線/上尾駅 歩53分 /
面積 : 39.04m² /
築年月 : 1988年10月 /
賃料 : 4.2万円 /
管理費又は共益費等 : 3,000円 /
礼金等 : 無料 /
敷金 : 無料、保証金等 : -、 償却、敷引 : - /
住宅総合保険等の損害保険料 : 1.9万円2年 /
その他 : 【店頭へ初回ご来店・お問合わせのお客様、当物件限定、仲介手数料0円】 経年劣化による修繕などで掲載している写真や設備などと実際の設備が 異なる場合があります。 お問い合わせやご契約の際は、その点にご留意頂き現状優先での お貸出しになる事をご了承ください。※退去時クリーニング費用(退去時精算・借主負担)入居審査事前相談可能(外国人可、生活保護など)※短期解約違約金有
合計1.98万円(内訳:鍵交換代1.98万円)
更新料 新賃料1.00ヶ月分
二人入居可
普通借家 2年
保証会社利用必 指定の保証会社(初期費用22500円・年間保証料10000円)
/ 駐車場 : 無
【店頭へ初回ご来店のお客様、当物件限定、仲介手数料0円】
当物件は初期費用のクレジットカード決済や分割が可能になります。また入居審査や入居希望日、初期費用のご相談もお気軽にお問合せください。 |
||

