フォレスト愛子[4階]
情報公開日:2025/12/11(残り15日)
次回更新日は2025/12/18
物件画像
画像提供元:リブマックス仙台駅前店(株)リブマックスリーシング
この物件のタグ
この物件にお問い合わせ
フォレスト愛子[4階]の物件情報
| 賃料/管理費等 |
6.2万円(管理費等 3,500円)
|
||
|---|---|---|---|
| 敷金 | 無料 | 礼金 | 6.2万円 |
| 種別/構造 | マンション/RC | 築年月 | 2005年01月 |
| 敷金積み増し | 喫煙者の場合敷金2ヶ月(総額) | ||
| 所在地 |
宮城県仙台市青葉区上愛子字蛇台原
|
||
| 主要交通機関 |
JR仙山線/愛子駅 歩12分 JR仙山線/陸前落合駅 歩41分 JR仙山線/陸前白沢駅 歩73分 |
||
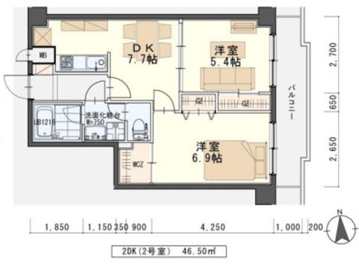
| 間取り | 2LDK | 面積 | 46.5m² |
| 間取り詳細 | 洋6.9 洋5.4 DK7.7 | 方位 | 東 |
| 階数/部屋番号 | 4階/地上6階建 | 駐車場 | 有(敷地内) 敷地内4400円 |
| 特徴 |
|
||
| 設備/条件 | バストイレ別、バルコニー、エアコン、ガスコンロ対応、クロゼット、フローリング、シャワー付洗面台、TVインターホン、オートロック、室内洗濯置、シューズボックス、システムキッチン、温水洗浄便座、脱衣所、エレベーター、洗面所独立、洗面化粧台、2口コンロ、光ファイバー、閑静な住宅地、敷金不要、照明付、全居室収納、全居室洋室、単身者相談、全居室フローリング、仲手0.55ヶ月、駅まで平坦、24時間換気システム、クロゼット2ヶ所、人感照明センサー、家電付、家具付、カーテン付、プロパンガス、洗面所にドア、BS、IT重説 対応物件、初期費用カード決済可 | ||
| 備考 |
■内見代行・写真撮影/動画撮影/WEB契約等来店不要でご契約可能です。お気軽にご相談下さい■ 合計5.66万円(内訳:鍵交換代0.77万円 町内会費0.6万円 ハウスクリーニング3.63万円 エアコン清掃0.66万円) 更新料 16500円 緊急メンテ費 月額700円 二人入居可/事務所利用不可 普通借家 2年 ※物件に関する備考は各社異なりますのでご確認のうえお問い合わせください。 |
||
| 契約期間 | お問い合わせください。 | ||
|---|---|---|---|
| 入居可能時期 |
即入居可
|
||
| 初期費用 |
お問い合わせください。
|
||
| 住宅保険 | 1.2万円2年 | 現状空室状況 | お問い合わせください。 |
情報提供元:リブマックス仙台駅前店(株)リブマックスリーシング
画像提供元:リブマックス仙台駅前店(株)リブマックスリーシング
※各種情報と現状に差異がある場合は、現状優先となります。取り扱い不動産会社が複数ある場合は、住宅保険等、一部条件が異なる場合もございますので、取扱店舗までご確認下さいませ。
この物件にお問い合わせ
周辺施設
| コンビニ |
セブン‐イレブン 仙台愛子駅前店 ファミリーマート 仙台上愛子店 |
|||
|---|---|---|---|---|
| スーパー |
株式会社ヨークベニマル 仙台愛子店 |
|||
| ドラッグストア |
カワチ薬品 愛子店 カワチ薬局 愛子店 |
|||
| 保育園 |
アスク愛子保育園 |
|||
|---|---|---|---|---|
| 幼稚園 |
愛子幼稚園 |
|||
| 小学校 |
仙台市立愛子小学校 |
|||
| 中学校 |
仙台市立 広瀬中学校 |
|||
※周辺情報は不動産会社から提供された情報ではなく、弊サービスで独自に収集した情報です。
担当者のオススメポイント!
仙台でのお部屋探しは情報量、経験豊富な当店にお任せ下さい!
地デジフレッツ光対応!安心のオートロック&TVモニターホンの設備付!JR仙山線『愛子』駅徒歩圏内♪愛子バイパスも近くお車をお持ちの方にオススメです★敷地内駐車場有り、室内設備も充実しています。
フォレスト愛子[4階]の取扱会社情報 2件
| 取扱会社(1) | リブマックス仙台駅前店(株)リブマックスリーシング (情報提供媒体:SUUMO) | ||
|---|---|---|---|
| 住所 | 宮城県仙台市青葉区中央1-8-40 井門仙台駅前ビル4階 | ||
| 電話番号 | 022-266-2202 | 免許番号 | 国土交通大臣(3)第8116号 |
| 取引態様 | 仲介 | 物件管理番号 |
100467441280 ※お問い合わせの際には、担当者へ物件管理番号をお伝えください。 |
| 物件に関する情報 |
物件の所在地 : 宮城県仙台市青葉区上愛子字蛇台原 /
交通の利便 : JR仙山線/愛子駅 歩12分、JR仙山線/陸前落合駅 歩41分、JR仙山線/陸前白沢駅 歩73分 /
面積 : 46.5m² /
築年月 : 2005年01月 /
賃料 : 6.2万円 /
管理費又は共益費等 : 3,500円 /
礼金等 : 1ヶ月 /
敷金 : 無料、保証金等 : -、 償却、敷引 : - /
住宅総合保険等の損害保険料 : 1.2万円2年 /
その他 : ■内見代行・写真撮影/動画撮影/WEB契約等来店不要でご契約可能です。お気軽にご相談下さい■
合計5.66万円(内訳:鍵交換代0.77万円 町内会費0.6万円 ハウスクリーニング3.63万円 エアコン清掃0.66万円)
更新料 16500円 緊急メンテ費 月額700円
二人入居可/事務所利用不可
普通借家 2年
/ 駐車場 : 有(敷地内)
敷地内4400円
仙台でのお部屋探しは情報量、経験豊富な当店にお任せ下さい!
地デジフレッツ光対応!安心のオートロック&TVモニターホンの設備付!JR仙山線『愛子』駅徒歩圏内♪愛子バイパスも近くお車をお持ちの方にオススメです★敷地内駐車場有り、室内設備も充実しています。 |
||
| 取扱会社(2) | リブ・マックス国分町店(株)リブマックスリーシング (情報提供媒体:SUUMO) | ||
|---|---|---|---|
| 住所 | 宮城県仙台市青葉区国分町2-8-22 | ||
| 電話番号 | 022-721-8901 | 免許番号 | 国土交通大臣(3)第8116号 |
| 取引態様 | 仲介 | 物件管理番号 |
100360172770 ※お問い合わせの際には、担当者へ物件管理番号をお伝えください。 |
| 物件に関する情報 |
物件の所在地 : 宮城県仙台市青葉区上愛子字蛇台原 /
交通の利便 : JR仙山線/愛子駅 歩12分、JR仙山線/陸前落合駅 歩41分、JR仙山線/陸前白沢駅 歩73分 /
面積 : 46.5m² /
築年月 : 2005年01月 /
賃料 : 6.2万円 /
管理費又は共益費等 : 3,500円 /
礼金等 : 1ヶ月 /
敷金 : 無料、保証金等 : -、 償却、敷引 : - /
住宅総合保険等の損害保険料 : 1.2万円2年 /
その他 : ■内見代行・写真撮影/動画撮影/WEB契約等来店不要でご契約可能です。お気軽にご相談下さい■
合計5.66万円(内訳:鍵交換代0.77万円 町内会費0.6万円 ハウスクリーニング3.63万円 エアコン清掃0.66万円)
更新料 16500円 緊急メンテ費 月額700円
二人入居可/事務所利用不可
普通借家 2年
/ 駐車場 : 有(敷地内)
敷地内4400円
仙台でのお部屋探しは情報量、経験豊富な当店にお任せ下さい!
地デジフレッツ光対応!安心のオートロック&TVモニターホンの設備付!JR仙山線『愛子』駅徒歩圏内♪愛子バイパスも近くお車をお持ちの方にオススメです★敷地内駐車場有り、室内設備も充実しています。 |
||
| 所属団体 |
(公社)宮城県宅地建物取引業協会会員 東北地区不動産公正取引協議会加盟 |
||

