コスモパートII[3階]
情報公開日:2025/09/27(残り15日)
次回更新日は情報公開日より15日以内
物件画像
画像提供元:(株)RoomCreate(ルームクリエイト)
この物件のタグ
この物件にお問い合わせ
コスモパートII[3階]の物件情報
| 賃料/管理費等 |
6.6万円(管理費等 3,000円)
|
||
|---|---|---|---|
| 敷金 | 無料 | 礼金 | 6.6万円 |
| 種別/構造 | マンション/RC | 築年月 | 2005年03月 |
| 所在地 |
徳島県徳島市西新浜町2
|
||
| 主要交通機関 |
JR牟岐線/徳島駅 歩55分 JR牟岐線/文化の森駅 歩21分 JR牟岐線/二軒屋駅 歩29分 |
||
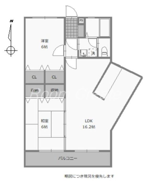
| 間取り | 2LDK | 面積 | 59.86m² |
| 間取り詳細 | 和6 洋6.5 LDK16.2 | 方位 | 南 |
| 階数/部屋番号 | 3階/地上3階建 | 駐車場 | 有(敷地内) 敷地内3000円/駐2台可 |
| 特徴 |
|
||
| 設備/条件 | バストイレ別、バルコニー、エアコン、フローリング、シャワー付洗面台、TVインターホン、浴室乾燥機、室内洗濯置、陽当り良好、シューズボックス、南向き、温水洗浄便座、脱衣所、洗面所独立、洗面化粧台、2口コンロ、駐輪場、CATV、光ファイバー、即入居可、閑静な住宅地、最上階、敷金不要、対面式キッチン、照明付、全居室収納、駐車2台可、二人入居相談、バイク置場、ガスレンジ付、LDK15畳以上、ネット使用料不要、眺望良好、浴室に窓、クロゼット2ヶ所、平坦地、南面2室、南面リビング、前面棟無、3駅以上利用可、上階無し、敷地内ごみ置き場、和室、プロパンガス、洗面所にドア、南面バルコニー、高速ネット対応、礼金1ヶ月、全室照明付、通風良好 | ||
| 備考 |
JR牟岐線 地蔵橋駅徒歩30分/巡回管理 CATV 1000円/月額 二人入居可/子供可 普通借家 2年 保証会社利用必 興和アシスト 賃料総額50%~ |
||
| 契約期間 | お問い合わせください。 | ||
|---|---|---|---|
| 入居可能時期 |
即入居可
|
||
| 初期費用 |
お問い合わせください。
|
||
| 住宅保険 | 1万円1年 | 現状空室状況 | お問い合わせください。 |
情報提供元:(株)RoomCreate(ルームクリエイト)
画像提供元:(株)RoomCreate(ルームクリエイト)
※各種情報と現状に差異がある場合は、現状優先となります。取り扱い不動産会社が複数ある場合は、住宅保険等、一部条件が異なる場合もございますので、取扱店舗までご確認下さいませ。
この物件にお問い合わせ
周辺施設
| コンビニ |
ローソン徳島西新浜町1丁目店 ファミリーマート 徳島山城西店 |
|||
|---|---|---|---|---|
| スーパー |
株式会社マルナカ 徳島店 キョーエイ沖浜店 |
|||
| ドラッグストア |
くすりのレデイ新浜店 新浜調剤薬局 |
|||
| 保育園 |
ゆめあい 認定こども園 |
|||
|---|---|---|---|---|
| 幼稚園 |
めだかのこころ認定こども園 |
|||
| 小学校 |
徳島文理小学校 |
|||
| 中学校 |
徳島文理中学校 |
|||
※周辺情報は不動産会社から提供された情報ではなく、弊サービスで独自に収集した情報です。
担当者のオススメポイント!
【西新浜町の快適2LDK】
南向きでとても日当たりの良いお部屋です。共有部もキレイに維持管理されており快適にお住まいいただけます。
コスモパートII[3階]の取扱会社情報 1件
| 取扱会社(1) | (株)RoomCreate(ルームクリエイト) (情報提供媒体:SUUMO) | ||
|---|---|---|---|
| 住所 | 徳島県徳島市北田宮4-4-7 | ||
| 電話番号 | 088-679-8644 | 免許番号 | 徳島県知事(3)第2924号 |
| 取引態様 | 仲介 | 物件管理番号 |
100417934889 ※お問い合わせの際には、担当者へ物件管理番号をお伝えください。 |
| 物件に関する情報 |
物件の所在地 : 徳島県徳島市西新浜町2 /
交通の利便 : JR牟岐線/徳島駅 歩55分、JR牟岐線/文化の森駅 歩21分、JR牟岐線/二軒屋駅 歩29分 /
面積 : 59.86m² /
築年月 : 2005年03月 /
賃料 : 6.6万円 /
管理費又は共益費等 : 3,000円 /
礼金等 : 1ヶ月 /
敷金 : 無料、保証金等 : -、 償却、敷引 : - /
住宅総合保険等の損害保険料 : 1万円1年 /
その他 : JR牟岐線 地蔵橋駅徒歩30分/巡回管理
CATV 1000円/月額
二人入居可/子供可
普通借家 2年
保証会社利用必 興和アシスト 賃料総額50%~
/ 駐車場 : 有(敷地内)
敷地内3000円/駐2台可
【西新浜町の快適2LDK】
南向きでとても日当たりの良いお部屋です。共有部もキレイに維持管理されており快適にお住まいいただけます。 |
||
| 所属団体 |
(公社)徳島県宅地建物取引業協会会員 四国地区不動産公正取引協議会加盟 |
||

