
シャイニング創SHINKURASHIKI
空室情報
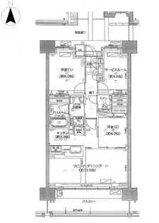
| 間取り画像 | 階 部屋番号 | 賃料 管理費 | 敷金 礼金 | 間取 面積 | 方位 | |
|---|---|---|---|---|---|---|
新着 ![]() | 6階 ー | 12.5万円 ー | 25.0万円 12.5万円 | 3LDK 65.74m² | 南 |
過去掲載物件情報
| 階 | 賃料 管理費 | 敷金 礼金 | 間取 面積 |
|---|---|---|---|
| 6階 | 12.5万円 ー | 25.0万円 12.5万円 | 2SLDK 65.74m² |
| 6階 | 12.5万円 ー | 25.0万円 12.5万円 | 3LDK 65.74m² |
| 3階 | 13.0万円 ー | 26.0万円 13.0万円 | 3LDK 66.4m² |
建物情報
| 住所 | 岡山県倉敷市玉島爪崎周辺物件を探す | 最寄り駅/列車種別 | 特急63m |
|---|---|---|---|
| 階建 | 地上15階建 | 築年月 | 2024年01月 |
| 種別 | マンション | 構造 | 鉄筋コンクリート |
周辺環境
周辺地図
周辺施設
金光薬局新倉敷店 (168m)
なの花薬局 新倉敷駅前店 (239m)
ハローズ新倉敷店 (488m)
マルナカ 新倉敷店 (640m)
デイリーヤマザキ新倉敷駅店 (6m)
セブン-イレブン 新倉敷駅前3丁目店 (342m)
倉敷市立 長尾幼稚園 (573m)
ドルフィン・メイトこども園 (253m)
倉敷市立長尾小学校 (615m)
倉敷市立玉島北中学校 (802m)
くらしき作陽大学 倉敷市のキャンパス (1,143m)
作陽短期大学 倉敷市のキャンパス (1,282m)
※周辺情報は不動産会社から提供された情報ではなく、弊サービスで独自に収集した情報です。
※2024年10月時点のデータを元にしているため、最新および正確でない可能性があります。






