
ツイン一の橋1号館
空室情報
| 間取り画像 | 階 部屋番号 | 賃料 管理費 | 敷金 礼金 | 間取 面積 | 方位 | |
|---|---|---|---|---|---|---|
新着 ![]() | 7階 ー | 22.0万円 2.0万円 | 22.0万円 22.0万円 | 2LDK 57.12m² | 東 | |
![]() | 5階 ー | 14.8万円 1.0万円 | 14.8万円 無料 | 1K 45.27m² | ー | |
![]() | 5階 ー | 14.8万円 1.0万円 | 14.8万円 無料 | 1K 45.27m² | ー | |
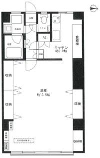
![]() | 5階 ー | 15.0万円 1.0万円 | 15.0万円 無料 | 1R 45.27m² | 東 |
過去掲載物件情報
| 階 | 賃料 管理費 | 敷金 礼金 | 間取 面積 |
|---|---|---|---|
| 11階 | 14.0万円 1.0万円 | 14.0万円 14.0万円 | 1DK 45.27m² |
| 8階 | 16.5万円 1.2万円 | 16.5万円 16.5万円 | 3LDK 57.12m² |
| 9階 | 13.8万円 ー | 13.8万円 13.8万円 | 1LDK 45.27m² |
建物情報
| 住所 | 東京都港区麻布十番4丁目周辺物件を探す | 最寄り駅/列車種別 | |
|---|---|---|---|
| 階建 | 地下1地上11階建 | 築年月 | 1959年01月 |
| 種別 | マンション | 構造 | SRC |
周辺環境
周辺地図
周辺施設
薬局日本メディカルシステム 麻布十番店 (106m)
薬樹薬局 麻布十番 (108m)
成城石井 麻布十番店 (198m)
ビオセボン 麻布十番店 (256m)
ローソン 麻布十番店 (84m)
セブン‐イレブン 麻布十番駅前店 (85m)
麻布山幼稚園 (378m)
デイジー保育園麻布十番 (253m)
港区立東町小学校 (391m)
東洋英和女学院 中学部 (595m)
東洋英和女学院大学 港区のキャンパス (597m)
慶應義塾大学 港区のキャンパス (838m)
ハリウッド大学院大学 港区のキャンパス (1,036m)
戸板女子短期大学 港区のキャンパス (1,187m)
※周辺情報は不動産会社から提供された情報ではなく、弊サービスで独自に収集した情報です。
※2024年10月時点のデータを元にしているため、最新および正確でない可能性があります。









