
シティーウォーク練馬
空室情報
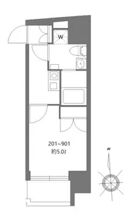
| 間取り画像 | 階 部屋番号 | 賃料 管理費 | 敷金 礼金 | 間取 面積 | 方位 | |
|---|---|---|---|---|---|---|
新着 ![]() | 2階 ー | 9.05万円 1.5万円 | 無料 無料 | 1K 18.88m² | 南 | |
新着 ![]() | 2階 ー | 9.05万円 1.5万円 | 無料 無料 | 1K 18.88m² | 南 |
過去掲載物件情報
過去掲載物件はありません
建物情報
| 住所 | 東京都練馬区練馬3丁目周辺物件を探す | 最寄り駅/列車種別 | |
|---|---|---|---|
| 階建 | 地上9階建 | 築年月 | 新築(2025年11月) |
| 種別 | マンション | 構造 | RC |
周辺環境
周辺地図
周辺施設
スギ薬局 練馬三丁目店 (153m)
ドラッグセガミ 練馬店 (242m)
株式会社オオゼキ 練馬店 (362m)
業務スーパー練馬駅前店 (395m)
セブン‐イレブン 練馬豊島園通り店 (93m)
セブンイレブン 練馬3丁目店 (237m)
ビクター幼稚園 (903m)
練馬 さくらんぼの森保育園 (180m)
練馬区立南町小学校 (532m)
練馬区立開進第二中学校 (618m)
※周辺情報は不動産会社から提供された情報ではなく、弊サービスで独自に収集した情報です。
※2024年10月時点のデータを元にしているため、最新および正確でない可能性があります。







