
皐月マンション
空室情報
| 間取り画像 | 階 部屋番号 | 賃料 管理費 | 敷金 礼金 | 間取 面積 | 方位 | |
|---|---|---|---|---|---|---|
新着 ![]() | 3階 ー | 4.7万円 ー | 無料 無料 | 3LDK 55m² | 南東 | |
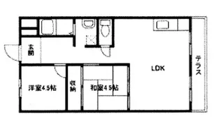
新着 ![]() | 3階 306号室 | 4.7万円 ー | 無料 無料 | 2LDK 55m² | 南東 |
過去掲載物件情報
| 階 | 賃料 管理費 | 敷金 礼金 | 間取 面積 |
|---|---|---|---|
| 4階 | 4.0万円 ー | 無料 無料 | 2LDK 55m² |
| 3階 | 4.0万円 ー | 無料 無料 | 2LDK 55m² |
| 2階 | 4.8万円 ー | 無料 無料 | 3LDK 55m² |
建物情報
| 住所 | 兵庫県明石市魚住町西岡周辺物件を探す | 最寄り駅/列車種別 | 普快672m |
|---|---|---|---|
| 階建 | 地上4階建 | 築年月 | 1978年10月 |
| 種別 | マンション | 構造 | RC |
周辺環境
周辺地図
周辺施設
やぎ薬局 (391m)
有限会社中西薬局 本部 (456m)
生鮮ストアー・マルシン (609m)
魚住モール管理室 (702m)
ファミリーマート 魚住四丁目店 (500m)
デイリーヤマザキ明石魚住駅南口店 (641m)
明石市立 錦が丘幼稚園 (1,128m)
第二恵泉保育園 (93m)
明石市立二見小学校 (1,071m)
明石市立魚住中学校 (858m)
※周辺情報は不動産会社から提供された情報ではなく、弊サービスで独自に収集した情報です。
※2024年10月時点のデータを元にしているため、最新および正確でない可能性があります。







