
M REGAL BLD
空室情報
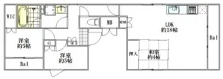
| 間取り画像 | 階 部屋番号 | 賃料 管理費 | 敷金 礼金 | 間取 面積 | 方位 | |
|---|---|---|---|---|---|---|
新着 ![]() | 4階 ー | 12.0万円 3,000円 | 24.0万円 24.0万円 | 3LDK 74.33m² | 南東 |
過去掲載物件情報
| 階 | 賃料 管理費 | 敷金 礼金 | 間取 面積 |
|---|---|---|---|
| 3階 | 6.3万円 3,000円 | 12.6万円 12.6万円 | 1DK 35.19m² |
| 3階 | 6.3万円 3,000円 | 12.6万円 12.6万円 | 1LDK 35.19m² |
| 2階 | 6.3万円 3,000円 | 12.6万円 12.6万円 | 1DK 35.19m² |
建物情報
| 住所 | 広島県広島市西区三篠町2丁目周辺物件を探す | 最寄り駅/列車種別 | |
|---|---|---|---|
| 階建 | 地上4階建 | 築年月 | 2022年03月 |
| 種別 | マンション | 構造 | RC |
周辺環境
周辺地図
周辺施設
マロン薬局 (145m)
福井薬局 (211m)
フジ フジ・三篠店 (278m)
株式会社エブリイ 楠木店 (500m)
セブン-イレブン広島三篠二丁目店 (181m)
セブン-イレブン 広島三篠1丁目店 (229m)
三篠幼稚園 (391m)
広島市立 三篠保育園 (236m)
広島市立三篠小学校 (299m)
崇徳学園崇徳中学校 (546m)
※周辺情報は不動産会社から提供された情報ではなく、弊サービスで独自に収集した情報です。
※2024年10月時点のデータを元にしているため、最新および正確でない可能性があります。






