
ガーデンヒルズヒラヤマ
空室情報
| 間取り画像 | 階 部屋番号 | 賃料 管理費 | 敷金 礼金 | 間取 面積 | 方位 | |
|---|---|---|---|---|---|---|
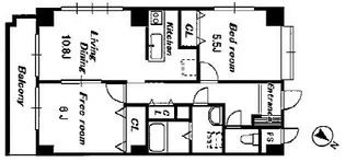
新着 ![]() | 3階 ー | 12.2万円 9,000円 | 12.2万円 12.2万円 | 2LDK 54m² | 南西 | |
新着 ![]() | 3階 ー | 12.2万円 9,000円 | 12.2万円 12.2万円 | 2LDK 54m² | 南東 |
過去掲載物件情報
| 階 | 賃料 管理費 | 敷金 礼金 | 間取 面積 |
|---|---|---|---|
| 1階 | 10.3万円 9,000円 | 10.3万円 10.3万円 | 2LDK 52.56m² |
| 1階 | 10.3万円 9,000円 | 10.3万円 10.3万円 | 2LDK 52.56m² |
| 1階 | 10.3万円 8,000円 | 無料 10.3万円 | 2LDK 54m² |
建物情報
| 住所 | 神奈川県川崎市多摩区菅5丁目周辺物件を探す | 最寄り駅/列車種別 | |
|---|---|---|---|
| 階建 | 地上4階建 | 築年月 | 2004年02月 |
| 種別 | マンション | 構造 | RC |
周辺環境
周辺地図
周辺施設
クスリのナカヤマ薬局 京王稲田堤駅前店 (293m)
ハックドラッグ 川崎稲田堤店 (309m)
株式会社京王ストア 稲田堤店 (342m)
まいばすけっと 京王稲田堤駅前店 (363m)
ローソン 川崎菅四丁目 (219m)
セブン‐イレブン 川崎菅野戸呂店 (283m)
菅幼稚園 (398m)
優祥会 さくら保育園 (472m)
稲城市立稲城第七小学校 (888m)
川崎市立菅中学校 (630m)
※周辺情報は不動産会社から提供された情報ではなく、弊サービスで独自に収集した情報です。
※2024年10月時点のデータを元にしているため、最新および正確でない可能性があります。





