
第二江南ビル
空室情報
| 間取り画像 | 階 部屋番号 | 賃料 管理費 | 敷金 礼金 | 間取 面積 | 方位 | |
|---|---|---|---|---|---|---|
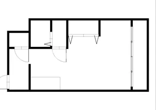
新着 ![]() | 4階 ー | 4.5万円 6,000円 | 無料 無料 | 1K 39.11m² | 南 | |
新着 ![]() | 4階 ー | 4.5万円 6,000円 | 無料 無料 | 1R 39.11m² | 南 |
過去掲載物件情報
| 階 | 賃料 管理費 | 敷金 礼金 | 間取 面積 |
|---|---|---|---|
| 4階 | 4.5万円 6,000円 | 無料 無料 | 1R 39.11m² |
| 4階 | 4.5万円 6,000円 | 無料 無料 | 1R 39.11m² |
| 3階 | 5.4万円 6,000円 | 無料 無料 | 1R 50.83m² |
建物情報
| 住所 | 大阪府大阪市西区安治川1丁目周辺物件を探す | 最寄り駅/列車種別 | |
|---|---|---|---|
| 階建 | 地上4階建 | 築年月 | 1970年09月 |
| 種別 | マンション | 構造 | RC |
周辺環境
周辺地図
周辺施設
松浦薬局 (372m)
オレンジ薬局 キララ店 (382m)
フレック九条 (351m)
株式会社カノー福島水産センター (379m)
セブン-イレブン 大阪本田4丁目店 (104m)
セブン-イレブン 大阪本田3丁目店 (436m)
九条幼稚園 (479m)
ふじのもり保育園 (368m)
大阪市立 九条北小学校 (487m)
大阪市立 野田中学校 (769m)
※周辺情報は不動産会社から提供された情報ではなく、弊サービスで独自に収集した情報です。
※2024年10月時点のデータを元にしているため、最新および正確でない可能性があります。







