



大阪府大阪市港区市岡元町3丁目
大阪市中央線/弁天町 徒歩3分
大阪環状線/弁天町 徒歩4分
大阪環状線/弁天町 徒歩4分
地上5階建 / 1988年06月 / 賃貸マンション
当社が「貸主」です! 地域とともに68年!港区の不動産の事ならお任せください! 物件はもちろん、周辺環境や近隣のお店の情報など、なんでもお気軽におたずねください♪
ただいま1人が検討中!
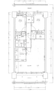
| 賃料 / 管理費 | 敷金 / 礼金 | 間取り / 面積 | 階数 部屋番号 | 方位 | 詳細を見る | |
|---|---|---|---|---|---|---|
| 6.8万円 / 7,000円 | 7.5万円 / 7.5万円 | 2DK / 37.14m² | 4階 401号室 | 北西 | 詳細を見る |



