



兵庫県芦屋市岩園町
東海道本線/芦屋 徒歩16分
阪神電鉄本線/打出 徒歩16分
阪急電鉄神戸線/芦屋川 徒歩18分
阪神電鉄本線/打出 徒歩16分
阪急電鉄神戸線/芦屋川 徒歩18分
地上8階建 / 1968年11月 / 賃貸マンション
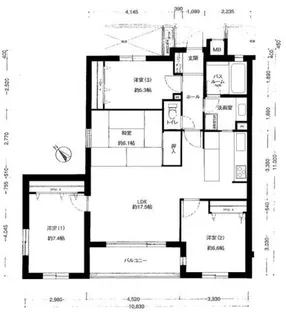
★分譲貸マンション ★角部屋 ★2018年6月室内改装工事済(キッチン・洗面・ユニットバス等) ★バイク置場あり(250cc未満6千円/年、250cc以上1.2万円/年)★近隣P1.5万円/台(要確認
ただいま2人が検討中!
| 賃料 / 管理費 | 敷金 / 礼金 | 間取り / 面積 | 階数 部屋番号 | 方位 | 詳細を見る | |
|---|---|---|---|---|---|---|
| 9.5万円 / ー | 9.5万円 / 19.0万円 | 1SLDK / 65.67m² | 2階 ー | 南西 | 詳細を見る |
















