



福岡県福岡市城南区七隈3丁目
福岡市七隈線/金山 徒歩4分
福岡市七隈線/七隈 徒歩11分
福岡市七隈線/茶山 徒歩13分
福岡市七隈線/七隈 徒歩11分
福岡市七隈線/茶山 徒歩13分
地上2階建 / 2004年01月 / 賃貸アパート
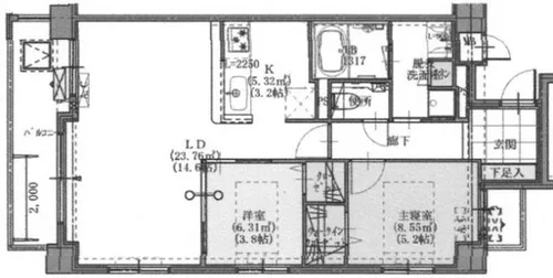
120メガ無料Wi-Fi導入。プロパンガス、宅配BOX、防犯カメラ有り。メゾネット風の階段ロフト付き。
| 賃料 / 管理費 | 敷金 / 礼金 | 間取り / 面積 | 階数 部屋番号 | 方位 | 詳細を見る | |
|---|---|---|---|---|---|---|
| 4.9万円 / 3,000円 | 無料 / 4.9万円 | 1K / 21.28m² | 1階 ー | ー | 詳細を見る |






















































