



| 賃料 / 管理費 | 敷金 / 礼金 | 間取り / 面積 | 階数 部屋番号 | 方位 | 詳細を見る | |
|---|---|---|---|---|---|---|
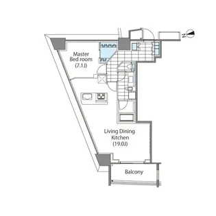
| 27.2万円 / 1.2万円 | 27.2万円 / 無料 | 1LDK / 40.62m² | 3階 ー | 東 | 詳細を見る |
| 店舗名 | 東急リバブル(株)新宿センター | |
|---|---|---|
| 住所 | 東京都新宿区西新宿1-6-1 新宿エルタワー1階 | |
| 定休日 | 毎週火曜日・水曜日 | |
| 営業時間 | 10:00~18:00 | |
| 交通 | - | |
| 免許番号 | 国土交通大臣(12)第2611号 | |
| 代表者名 | - | |
| 所属団体 | (一社)不動産流通経営協会会員 (公社)首都圏不動産公正取引協議会加盟 | |
| TEL | 0800-1707016 |
※店舗所在地のアイコンは、情報提供元のより頂いた住所データを基に弊社にて設置しております。実際の所在地と多少異なる場合もございますので、お問合せ・来店の際には念の為、ご確認を頂けますようお願い申しあげます。

5.00
5.00
5.00
5.00
5.00
5.00
5.00
5.00
物件の問い合わせをしたところ、返信がすぐにきました。あまりの速さに自動返信やBOTかと思いました。また、物件の問い合わせの際に、質問事項があったので、合わせて連絡しましたが、そちらの問い合わせについても回答がありました。 その後、実際に内見をしてみましたが、気になることが多数出てきたので、何度か問い合わせをしました。客観的に考えて、かなり面倒なことの質問をしていたと思いましたが、丁寧に回答してもらっていたと思います。 また、物件の契約をしたのち、引越しに向けて、部屋の寸法が気になっていましたが、相談したところ、確認いただけました。物件掲載時の間取りへ部屋のさまざまなところの採寸がされたサイズが書かれていました。そのおかげで引越し前から、家具の配置もイメージすることができました。じゅうたんも新調しようと考えていたので、非常に助かりました。 契約の手続きも完了し、部屋の鍵を受け取る日時について相談していたところ、鍵を受け取るだけでしたが、建物前にしましょうかと提案があり、わざわざ新宿まで来なくていいように言っていただけて、お気遣いいただきました。
(2024/03投稿)5.00
私が東急リバブルを選んだ理由は、その信頼性と豊富な経験です。この会社は過去に友人や家族が利用し、良い評判を聞いたことから選びました。また、物件の選択肢も多く、予算や希望条件に合った選択肢を提案してくれたように思います。仲介手数料も他社に比べて妥当な範囲内であり、透明な料金体系で安心感がありました。 さらに、スタッフの対応も素晴らしく、とても丁寧な説明と親切な対応が印象的でした。質問や不安な点にも迅速に対応してくれ、安心して物件を選ぶことができました。 最終的に、私の予定や条件に合った物件を素早く見つけてくれたことも、この会社を選んだ大きな要因です。選択肢の中から理想の物件を提案していただき、満足のいく選択ができました。 総じて、信頼性のある評判、豊富な選択肢、丁寧な対応など、多くの要因からこの仲介会社を選びました。これからもお世話になる機会があるかと思いますが、今後も期待に応えてくれると信じています。
(2023/08投稿)5.00
メールで問い合わせをしてすぐに物件状況の返信があり空室があること、また新築で物件の内覧会の案内や仲介手数料まわりについての詳細案内もしていただき、早めに決めないといけない自分にとってはありがたかったです。内覧会ではまだ一部工事中で当初見られない予定だった希望の部屋を調整して見せていただき、その他タイプの部屋も提案してくれることで選択肢も広げていただけました。結果、当初問い合わせした部屋に決めました!契約のときには事前に所要時間も提示した上で当方の都合に合わせて設定し、しっかりとわかりやすく契約内容を説明していただきました。入居日調整については、引越し日が限られていた当方のことを考慮し、入居可能日より1日前倒しで入居できるように調整いただいたり、鍵の引き渡しに関しても入居日前日に届くようにしてもらうなど、いろいろ当方の希望をきいていただき本当によかったです。来訪時のオフィスに関してはきれいな部屋で毎回お茶もだしていただき快適でした。また機会があれば利用させていただきたい不動産会社でした。
(2018/08投稿)10:00~18:00
毎週火曜日・水曜日




| 賃料 / 管理費 | 敷金 / 礼金 | 間取り / 面積 | 階数 部屋番号 | 方位 | 詳細を見る | |
|---|---|---|---|---|---|---|
| 27.2万円 / 1.2万円 | 27.2万円 / 無料 | 1LDK / 40.62m² | 3階 ー | 東 | 詳細を見る |




| 賃料 / 管理費 | 敷金 / 礼金 | 間取り / 面積 | 階数 部屋番号 | 方位 | 詳細を見る | |
|---|---|---|---|---|---|---|
| 27.4万円 / 1.2万円 | 27.4万円 / 無料 | 1LDK / 40.62m² | 10階 ー | 東 | 詳細を見る |




| 賃料 / 管理費 | 敷金 / 礼金 | 間取り / 面積 | 階数 部屋番号 | 方位 | 詳細を見る | |
|---|---|---|---|---|---|---|
| 27.3万円 / 1.2万円 | 27.3万円 / 無料 | 1LDK / 40.62m² | 4階 ー | 東 | 詳細を見る |




| 賃料 / 管理費 | 敷金 / 礼金 | 間取り / 面積 | 階数 部屋番号 | 方位 | 詳細を見る | |
|---|---|---|---|---|---|---|
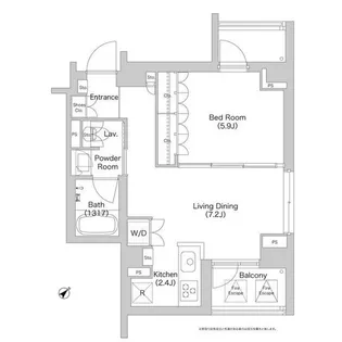
| 23.4万円 / 1.0万円 | 23.4万円 / 無料 | 1LDK / 34.64m² | 6階 ー | 西 | 詳細を見る |




| 賃料 / 管理費 | 敷金 / 礼金 | 間取り / 面積 | 階数 部屋番号 | 方位 | 詳細を見る | |
|---|---|---|---|---|---|---|
| 16.4万円 / 1.0万円 | 16.4万円 / 無料 | 1DK / 25.23m² | 4階 ー | 南 | 詳細を見る |





| 賃料 / 管理費 | 敷金 / 礼金 | 間取り / 面積 | 階数 部屋番号 | 方位 | 詳細を見る | |
|---|---|---|---|---|---|---|
| 15.9万円 / 6,000円 | 15.9万円 / 無料 | 1K / 25.92m² | 5階 ー | 西 | 詳細を見る |




| 賃料 / 管理費 | 敷金 / 礼金 | 間取り / 面積 | 階数 部屋番号 | 方位 | 詳細を見る | |
|---|---|---|---|---|---|---|
| 20.2万円 / 1.0万円 | 20.2万円 / 無料 | 1DK / 30.99m² | 7階 ー | 東 | 詳細を見る |




| 賃料 / 管理費 | 敷金 / 礼金 | 間取り / 面積 | 階数 部屋番号 | 方位 | 詳細を見る | |
|---|---|---|---|---|---|---|
| 16.7万円 / 1.0万円 | 16.7万円 / 無料 | 1DK / 25.23m² | 9階 ー | 南 | 詳細を見る |




| 賃料 / 管理費 | 敷金 / 礼金 | 間取り / 面積 | 階数 部屋番号 | 方位 | 詳細を見る | |
|---|---|---|---|---|---|---|
| 16.3万円 / 6,000円 | 16.3万円 / 無料 | 1K / 26.25m² | 9階 ー | 西 | 詳細を見る |




| 賃料 / 管理費 | 敷金 / 礼金 | 間取り / 面積 | 階数 部屋番号 | 方位 | 詳細を見る | |
|---|---|---|---|---|---|---|
| 37.4万円 / 1.2万円 | 37.4万円 / 無料 | 2LDK / 60.88m² | 11階 ー | 西 | 詳細を見る |





| 賃料 / 管理費 | 敷金 / 礼金 | 間取り / 面積 | 階数 部屋番号 | 方位 | 詳細を見る | |
|---|---|---|---|---|---|---|
| 35.3万円 / ー | 70.6万円 / 無料 | 1LDK / 55.53m² | 15階 ー | 東 | 詳細を見る |




| 賃料 / 管理費 | 敷金 / 礼金 | 間取り / 面積 | 階数 部屋番号 | 方位 | 詳細を見る | |
|---|---|---|---|---|---|---|
| 30.6万円 / ー | 61.2万円 / 無料 | 1LDK / 47.06m² | 15階 ー | 西 | 詳細を見る |




| 賃料 / 管理費 | 敷金 / 礼金 | 間取り / 面積 | 階数 部屋番号 | 方位 | 詳細を見る | |
|---|---|---|---|---|---|---|
| 36.4万円 / ー | 72.8万円 / 無料 | 1LDK / 55.47m² | 16階 ー | 西 | 詳細を見る |




| 賃料 / 管理費 | 敷金 / 礼金 | 間取り / 面積 | 階数 部屋番号 | 方位 | 詳細を見る | |
|---|---|---|---|---|---|---|
| 28.2万円 / ー | 56.4万円 / 無料 | 1R / 43.07m² | 14階 ー | 西 | 詳細を見る |




| 賃料 / 管理費 | 敷金 / 礼金 | 間取り / 面積 | 階数 部屋番号 | 方位 | 詳細を見る | |
|---|---|---|---|---|---|---|
| 28.6万円 / ー | 57.2万円 / 無料 | 1LDK / 45.25m² | 19階 ー | 東 | 詳細を見る |





| 賃料 / 管理費 | 敷金 / 礼金 | 間取り / 面積 | 階数 部屋番号 | 方位 | 詳細を見る | |
|---|---|---|---|---|---|---|
| 29.2万円 / ー | 58.4万円 / 無料 | 1R / 44.8m² | 16階 ー | 西 | 詳細を見る |




| 賃料 / 管理費 | 敷金 / 礼金 | 間取り / 面積 | 階数 部屋番号 | 方位 | 詳細を見る | |
|---|---|---|---|---|---|---|
| 23.6万円 / 1.2万円 | 23.6万円 / 無料 | 2LDK / 42.79m² | 4階 ー | 南東 | 詳細を見る |




| 賃料 / 管理費 | 敷金 / 礼金 | 間取り / 面積 | 階数 部屋番号 | 方位 | 詳細を見る | |
|---|---|---|---|---|---|---|
| 27.7万円 / ー | 55.4万円 / 無料 | 1R / 42.51m² | 11階 ー | 西 | 詳細を見る |




| 賃料 / 管理費 | 敷金 / 礼金 | 間取り / 面積 | 階数 部屋番号 | 方位 | 詳細を見る | |
|---|---|---|---|---|---|---|
| 39.4万円 / ー | 78.8万円 / 無料 | 1LDK / 62.86m² | 2階 ー | 西 | 詳細を見る |




| 賃料 / 管理費 | 敷金 / 礼金 | 間取り / 面積 | 階数 部屋番号 | 方位 | 詳細を見る | |
|---|---|---|---|---|---|---|
| 64.6万円 / ー | 129.2万円 / 無料 | 2LDK / 98.48m² | 7階 ー | 西 | 詳細を見る |





| 賃料 / 管理費 | 敷金 / 礼金 | 間取り / 面積 | 階数 部屋番号 | 方位 | 詳細を見る | |
|---|---|---|---|---|---|---|
| 13.1万円 / 8,000円 | 13.1万円 / 13.1万円 | 1K / 23.01m² | 2階 ー | ー | 詳細を見る |




| 賃料 / 管理費 | 敷金 / 礼金 | 間取り / 面積 | 階数 部屋番号 | 方位 | 詳細を見る | |
|---|---|---|---|---|---|---|
| 23.5万円 / 1.2万円 | 23.5万円 / 無料 | 2LDK / 42.24m² | 3階 ー | 南東 | 詳細を見る |




| 賃料 / 管理費 | 敷金 / 礼金 | 間取り / 面積 | 階数 部屋番号 | 方位 | 詳細を見る | |
|---|---|---|---|---|---|---|
| 14.4万円 / 6,000円 | 14.4万円 / 無料 | 1K / 25.11m² | 9階 ー | 北西 | 詳細を見る |




| 賃料 / 管理費 | 敷金 / 礼金 | 間取り / 面積 | 階数 部屋番号 | 方位 | 詳細を見る | |
|---|---|---|---|---|---|---|
| 39.8万円 / ー | 79.6万円 / 無料 | 1LDK / 62.86m² | 14階 ー | 西 | 詳細を見る |




| 賃料 / 管理費 | 敷金 / 礼金 | 間取り / 面積 | 階数 部屋番号 | 方位 | 詳細を見る | |
|---|---|---|---|---|---|---|
| 22.8万円 / 1.2万円 | 22.8万円 / 無料 | 2LDK / 42.24m² | 2階 ー | 南東 | 詳細を見る |





| 賃料 / 管理費 | 敷金 / 礼金 | 間取り / 面積 | 階数 部屋番号 | 方位 | 詳細を見る | |
|---|---|---|---|---|---|---|
| 24.0万円 / 1.2万円 | 24.0万円 / 無料 | 2LDK / 42.24m² | 4階 ー | 南東 | 詳細を見る |




| 賃料 / 管理費 | 敷金 / 礼金 | 間取り / 面積 | 階数 部屋番号 | 方位 | 詳細を見る | |
|---|---|---|---|---|---|---|
| 27.6万円 / ー | 55.2万円 / 無料 | 1K / 42.53m² | 17階 ー | 西 | 詳細を見る |




| 賃料 / 管理費 | 敷金 / 礼金 | 間取り / 面積 | 階数 部屋番号 | 方位 | 詳細を見る | |
|---|---|---|---|---|---|---|
| 27.3万円 / ー | 54.6万円 / 無料 | 1R / 41.23m² | 14階 ー | 東 | 詳細を見る |




| 賃料 / 管理費 | 敷金 / 礼金 | 間取り / 面積 | 階数 部屋番号 | 方位 | 詳細を見る | |
|---|---|---|---|---|---|---|
| 24.5万円 / ー | 49.0万円 / 無料 | 1K / 42.53m² | 5階 ー | 西 | 詳細を見る |




| 賃料 / 管理費 | 敷金 / 礼金 | 間取り / 面積 | 階数 部屋番号 | 方位 | 詳細を見る | |
|---|---|---|---|---|---|---|
| 28.9万円 / ー | 57.8万円 / 無料 | 1K / 42.53m² | 16階 ー | 西 | 詳細を見る |
お気に入り物件に
追加しました
現在0件保存されています
残り50件追加することができます
削除しました。