



神奈川県足柄下郡箱根町強羅
箱根登山鉄道/強羅駅 歩4分
地上6階建 / 2009年11月 / 賃貸マンション
4つの天然温泉風呂と貸切家族風呂。優雅なるリゾートライフを。
リビングの正面には明星ヶ岳の大文字と美しい木々に囲まれた景色。三井不動産旧分譲のハイグレードリゾートマンション。ホテルとは異なる自分だけのリゾートSlow Lifeを。
ただいま5人が検討中! 人気上昇中!注目の物件です!
| 賃料 / 管理費 | 敷金 / 礼金 | 間取り / 面積 | 階数 部屋番号 | 方位 | 詳細を見る | |
|---|---|---|---|---|---|---|
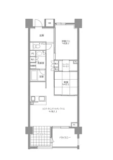
| 29.8万円 / ー | 無料 / 無料 | 2LDK / 68.18m² | 2階 ー | 北東 | 詳細を見る |

