



神奈川県相模原市緑区橋本台1
京王相模原線/橋本駅 歩21分
JR横浜線/橋本駅 歩23分
JR相模線/橋本駅 歩23分
JR横浜線/橋本駅 歩23分
JR相模線/橋本駅 歩23分
地上4階建 / 建築中(2026年04月) / 賃貸マンション
断熱等級6のホテルライク仕様シャーメゾン。オール電化。
重量鉄骨造4階建。内階段。アクセントクロス。高遮音床システムのシャイド55を搭載。敷地内ゴミ置場。屋根付駐輪場。全身ミラー。ダウンライト。外出先で家電を操作できるIOTを搭載。保証人不要システム。
ただいま2人が検討中!
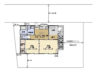
| 賃料 / 管理費 | 敷金 / 礼金 | 間取り / 面積 | 階数 部屋番号 | 方位 | 詳細を見る | |
|---|---|---|---|---|---|---|
| 14.3万円 / 9,000円 | 無料 / 28.6万円 | 2LDK / 63.84m² | 1階 ー | 南 | 詳細を見る |























































