

11.5万円
管理費ー
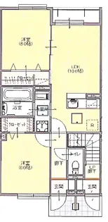
2LDK / 53.12m²
1階 / 地上2階建
建築中 / 賃貸アパート
| 店舗名 | (株)太平商事元町支店 |
|---|---|
| 住所 | 神奈川県茅ヶ崎市元町 4-39 小沢プラザ1階 |
| 定休日 | 水曜日 |
| 営業時間 | 10:00~17:45 |
| 交通 | - |
| 免許番号 | 神奈川県知事(14)第6566号 |
| 代表者名 | - |
| 所属団体 | (公社)神奈川県宅地建物取引業協会会員 (公社)首都圏不動産公正取引協議会加盟 |
| TEL | 0467-88-1123 |

4.78
5.00
4.67
4.67
4.67
5.00
4.67
5.00
今回の不動産会社に決めた一番のポイントと言っても、借りたい部屋を契約している不動産会社が指定だったことになります。不動産会社で選んだというよりも借りたい部屋で選んだ形となります。 もしも契約に対する話の最中に嫌な思いをしたら別の物件にしようと考えていましたが、そんな事は全くなく、とてもここよく受け入れてくださったので迷いなく契約いたしました。 スタッフ対応について、契約前から電話対応やメール対応がとてもスムーズで、早く不明点を気軽に相談できたのも良かった点です。困ったときの連絡先や物件契約以外のライフラインのサポートなども助言してくださりとても親身だったのを覚えています。今まで宅建の資格を開示しながら重要事項説明をされたことがなかったので、今回の不動産会社はそれを丁寧にしてくださり、とても熱い信頼を感じました。 また、お休みの時の案内や早め早めにスケジュール感を教えてくださり、大変助かりました。
(2024/12投稿)4.34
契約の中で良かった点は数多くあります。まず、担当の目崎さんが親切かつ丁寧に対応してくれたことが挙げられます。物件の案内や契約手続きの際には、質問や疑問に素早く対応してくれました。また、物件の見学時には詳細な説明をしてくれたり、要望に合った物件を提案してくれるなど、信頼できるサポートを受けることができました。さらに、物件情報の充実も大きな利点でした。不動産会社のウェブサイトや資料には、写真や動画だけでなく、間取り図や設備の説明、周辺環境やアクセス情報など、入居者が知りたい情報が詳細に記載されていました。これにより、物件を選ぶ際に細かいポイントまで比較検討することができ、満足度の高い選択をすることができました。また、契約手続きや入居までのプロセスも非常にスムーズでした。必要な書類や手続きがわかりやすく案内され、審査や手続きの期間も短かったため、入居までの時間を最小限に抑えることができましたので、大変助かりました。
(2024/01投稿)5.00
茅ヶ崎周辺で他の不動産屋へ3軒行きました。契約に関する必要事項はどこでも書類に記入すると思います。今回の引越しで気づいたことは不動産はなぜ引っ越しするかをヒアリングすることです。今までは転職や結婚が理由でしたのでそこまで気にならなかったのですが、今回は離婚が理由での引っ越しでした。離婚前は話し合いや決めることが余りにも多く大変疲れているなかで物件を急いで決めなければいけませんでした。そこで不動産へいき引っ越し理由は説明することにも当時は疲れていましたが、担当の井上さんは直接引越し理由などは聞かずに察して頂いているようでした。プライベートなどもあまり聞かれることなくスマートにご対応して頂きました。連絡方法も電話は仕事の都合で取りづらいこともありメールで迅速にやりとりして頂きました。とっても感謝しています。また、室内がロフト付き物件のためカーテンレールの取り付け位置が高く脚立が必要でした。井上さんに相談したところ近い店舗で貸して頂けました。一人暮らしなので買わずに済んで大変助かりました。
(2023/05投稿)10:00~17:45
水曜日


11.5万円
管理費ー
2LDK / 53.12m²
1階 / 地上2階建
建築中 / 賃貸アパート


11.3万円
管理費ー
2LDK / 52.9m²
1階 / 地上2階建
建築中 / 賃貸アパート


6.6万円
管理費3,000円
1K / 19.8m²
3階 / 地上3階建
築19年 / 賃貸マンション


5.0万円
管理費ー
1K / 22.68m²
2階 / 地上2階建
築30年 / 賃貸アパート


5.0万円
管理費ー
1R / 20.4m²
1階 / 地上2階建
築16年 / 賃貸アパート


8.9万円
管理費6,000円
2K / 42m²
1階 / 地上2階建
築28年 / 賃貸アパート


13.1万円
管理費8,000円
2LDK / 65.75m²
2階 / 地上2階建
築2年 / 賃貸アパート


6.5万円
管理費ー
3DK / 57.1m²
5階 / 地上5階建
築32年 / 賃貸マンション


9.8万円
管理費5,000円
1LDK / 40.08m²
3階 / 地上6階建
築8年 / 賃貸マンション


6.8万円
管理費2,000円
1LDK / 40.54m²
1階 / 地上2階建
築18年 / 賃貸アパート


8.0万円
管理費ー
1LDK / 48.5m²
1階 / 地上2階建
築11年 / 賃貸アパート


4.5万円
管理費ー
1K / 21m²
2階 / 地上2階建
築27年 / 賃貸アパート


6.8万円
管理費ー
1LDK / 40.92m²
2階 / 地上2階建
築33年 / 賃貸アパート


7.4万円
管理費6,000円
2DK / 38.6m²
2階 / 地上2階建
築33年 / 賃貸アパート


9.1万円
管理費2,000円
2LDK / 60m²
1階 / 地上2階建
築20年 / 賃貸アパート


7.5万円
管理費2,000円
1LDK / 45m²
1階 / 地上2階建
築18年 / 賃貸アパート


8.8万円
管理費ー
3DK / 64.46m²
地上2階建
築45年


6.9万円
管理費ー
2DK / 47.28m²
1階 / 地上2階建
築31年 / 賃貸アパート


10.1万円
管理費ー
2LDK / 55.97m²
地上1階建
築6年


7.7万円
管理費5,000円
1K / 22.47m²
6階 / 地上6階建
築22年 / 賃貸マンション


4.3万円
管理費ー
1K / 20m²
1階 / 地上2階建
築32年 / 賃貸アパート


6.6万円
管理費5,000円
1LDK / 45m²
1階 / 地上2階建
築19年 / 賃貸アパート


5.0万円
管理費ー
2DK / 40m²
1階 / 地上2階建
築36年 / 賃貸アパート


8.2万円
管理費ー
2LDK / 60.18m²
2階 / 地上3階建
築29年 / 賃貸マンション
現在0件保存されています。
あと50件保存することができます。
お気に入りページから保存した物件が確認できます。

削除しました。