



東京都八王子市川口町
JR中央線/西八王子駅 歩58分
西東京バス/やまゆり館 歩2分
西東京バス/やまゆり館 歩2分
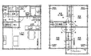
地上2階建 / 1976年11月 / 一戸建
弊社のみのご紹介です。諸条件ご相談ください!
敷金・礼金0物件も多数ご案内可能です!類似物件のご紹介も可能ですので、まずはお気軽にお問合せください!☆エイトホーム:☆遠方の方でもオンライン内見にてご対応致します。
ただいま4人が検討中!
| 賃料 / 管理費 | 敷金 / 礼金 | 間取り / 面積 | 階数 部屋番号 | 方位 | 詳細を見る | |
|---|---|---|---|---|---|---|
| 10.0万円 / ー | 10.0万円 / 10.0万円 | 3DK / 63.48m² | 1-2階 ー | ー | 詳細を見る |
























































