



神奈川県横浜市瀬谷区下瀬谷3
小田急江ノ島線/桜ヶ丘駅 歩17分
相鉄本線/瀬谷駅 歩25分
相鉄本線/三ツ境駅 バス18分 (バス停)郵便局前 歩1分
相鉄本線/瀬谷駅 歩25分
相鉄本線/三ツ境駅 バス18分 (バス停)郵便局前 歩1分
地上2階建 / 2015年01月 / 賃貸アパート
エイブルでご契約の方は当物件の仲介手数料が家賃の55%!
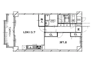
温水洗浄便座付き。TVインターホン付き。ロフト付き。敷金・礼金なし。駐車場セット契約。引越指定業者あり。1坪の浴室。追い焚き付き。
ただいま3人が検討中!
| 賃料 / 管理費 | 敷金 / 礼金 | 間取り / 面積 | 階数 部屋番号 | 方位 | 詳細を見る | |
|---|---|---|---|---|---|---|
| 8.2万円 / 3,500円 | 無料 / 無料 | 1SLDK / 52.58m² | 2階 ー | 南東 | 詳細を見る |






















































