



広島県広島市中区昭和町
広島電鉄宇品線/中電前 徒歩6分
広島電鉄宇品線/市役所前 徒歩8分
広島電鉄宇品線/市役所前 徒歩8分
地上12階建 / 築1年以内(2025年01月) / 賃貸マンション
お引越しをしてすぐにインターネットが無料で使えます! 殺菌消毒費:24200円/初回、良和安心LIFEサポート:1100円/月 ※保証会社・内容要確認 ※ペット飼育時(犬・猫一匹ずつ可能):敷金+1ヵ月・賃料+3,000円 駐輪場代(税込):550円 小型バイク(税込):1100円 短期解約違約金有 1ヵ月(1年未満)
ただいま1人が検討中!
| 賃料 / 管理費 | 敷金 / 礼金 | 間取り / 面積 | 階数 部屋番号 | 方位 | 詳細を見る | |
|---|---|---|---|---|---|---|
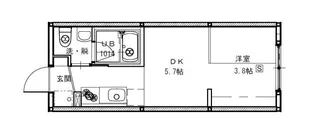
| 7.6万円 / 5,000円 | 7.6万円 / 7.6万円 | 1LDK / 29.85m² | 3階 ー | 南 | 詳細を見る |






















































