

77.5万円
管理費ー
敷155.0万円礼77.5万円
東京メトロ半蔵門線/半蔵門駅 歩2分
東京メトロ有楽町線/麹町駅 歩10分
東京メトロ有楽町線/市ケ谷駅 歩18分
東京メトロ有楽町線/麹町駅 歩10分
東京メトロ有楽町線/市ケ谷駅 歩18分
東京都千代田区麹町1
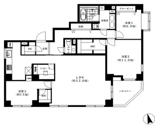
3SLDK / 135.38m²
2階 / 地下1地上8階建
築44年 / 賃貸マンション
ただいま 3人 が検討中!
| 店舗名 | (株)クレステート |
|---|---|
| 住所 | 東京都港区赤坂1-14-5 アークヒルズEXタワー4階 |
| 定休日 | 火曜日、水曜日 |
| 営業時間 | 10:00~19:00 |
| 交通 | - |
| 免許番号 | 東京都知事(5)第77160号 |
| 代表者名 | - |
| 所属団体 | (公社)全日本不動産協会東京都本部会員 (公社)首都圏不動産公正取引協議会加盟 |
| TEL | 03-5544-9122 |

10:00~19:00
火曜日、水曜日


77.5万円
管理費ー
3SLDK / 135.38m²
2階 / 地下1地上8階建
築44年 / 賃貸マンション
現在0件保存されています。
あと50件保存することができます。
お気に入りページから保存した物件が確認できます。

削除しました。