



神奈川県横浜市保土ヶ谷区鎌谷町
相鉄本線/天王町駅 歩16分
相鉄本線/星川駅 歩18分
JR東海道本線/横浜駅 バス9分 (バス停)浅間町車庫前 歩11分
相鉄本線/星川駅 歩18分
JR東海道本線/横浜駅 バス9分 (バス停)浅間町車庫前 歩11分
地上2階建 / 1980年04月 / 一戸建
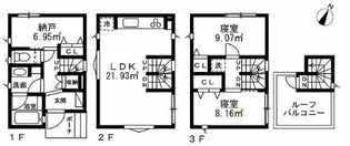
P2台分、ガレージ付の4LDK戸建物件の募集を開始しました
駐車場最大2台分、シャッター付のガレージ付の4LDK戸建!内装リノベーション済!動画内見はこちらから → https://youtu.be/BoxaIeEpNTE
ただいま2人が検討中!
| 賃料 / 管理費 | 敷金 / 礼金 | 間取り / 面積 | 階数 部屋番号 | 方位 | 詳細を見る | |
|---|---|---|---|---|---|---|
| 18.0万円 / ー | 18.0万円 / 18.0万円 | 4LDK / 108.54m² | ー ー | 南 | 詳細を見る |




























































