



東京都板橋区坂下1
都営三田線/志村三丁目駅 歩8分
都営三田線/志村坂上駅 歩12分
都営三田線/蓮根駅 歩17分
都営三田線/志村坂上駅 歩12分
都営三田線/蓮根駅 歩17分
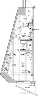
地上5階建 / 2024年05月 / 賃貸マンション
ネット無料・ペット飼育可、設備充実の新築デザイナーズ物件です
ご見学・お急ぎの方はこちら 無料2 オーナー様と直接取引している物件を10万戸以上保有しているため、賃料、初期費用、賃料発生日など諸条件を何でもご相談くださいませ
ただいま1人が検討中!
| 賃料 / 管理費 | 敷金 / 礼金 | 間取り / 面積 | 階数 部屋番号 | 方位 | 詳細を見る | |
|---|---|---|---|---|---|---|
| 14.9万円 / 1.5万円 | 無料 / 無料 | 1DK / 35.53m² | 2階 ー | 南西 | 詳細を見る |




























































