



新潟県新潟市東区中島2
JR白新線/東新潟駅 歩10分
地上2階建 / 1994年 / 一戸建
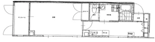
4LDKの広々したお家です!
シャッター付き車庫があるので、雨や雪の日はもちろん、昨今のあつーい夏でも車は快適。スーパーやドラッグストア、コンビニなども近くにあり便利です。
ただいま5人が検討中! 人気上昇中!注目の物件です!
| 賃料 / 管理費 | 敷金 / 礼金 | 間取り / 面積 | 階数 部屋番号 | 方位 | 詳細を見る | |
|---|---|---|---|---|---|---|
| 10.0万円 / ー | 20.0万円 / 10.0万円 | 4LDK / 131.56m² | ー ー | 南 | 詳細を見る |









