



東京都葛飾区金町4
京成金町線/京成金町駅 歩10分
JR常磐線/金町駅 歩10分
京成金町線/柴又駅 歩21分
JR常磐線/金町駅 歩10分
京成金町線/柴又駅 歩21分
地上5階建 / 2023年10月 / 賃貸マンション
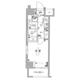
敷金礼金ゼロゼロ!ネット無料!南向きの角部屋です♪
☆ネット無料☆宅配ボックス☆独立洗面台☆浴室乾燥機☆オートロック☆他社様掲載の物件も一括してご対応させていただきますのでお気軽にご相談ください♪
ただいま25人が検討中! 人気上昇中!注目の物件です!
| 賃料 / 管理費 | 敷金 / 礼金 | 間取り / 面積 | 階数 部屋番号 | 方位 | 詳細を見る | |
|---|---|---|---|---|---|---|
| 7.25万円 / 1.5万円 | 無料 / 無料 | 1DK / 20.57m² | 4階 ー | 南 | 詳細を見る |




























































