



東京都江東区深川2
東京メトロ東西線/門前仲町駅 歩3分
都営大江戸線/門前仲町駅 歩3分
東京メトロ半蔵門線/清澄白河駅 歩13分
都営大江戸線/門前仲町駅 歩3分
東京メトロ半蔵門線/清澄白河駅 歩13分
地上14階建 / 2016年12月 / 賃貸マンション
【LINEでのやり取り可能☆】お気軽にご連絡ください♪
管理物件有、初期費用カード決済可能、現地待合せ・オンライン内見・契約実施中!いい部屋ネット神田駅東口店へお気軽にお問い合わせください【:】
ただいま5人が検討中! 人気上昇中!注目の物件です!
| 賃料 / 管理費 | 敷金 / 礼金 | 間取り / 面積 | 階数 部屋番号 | 方位 | 詳細を見る | |
|---|---|---|---|---|---|---|
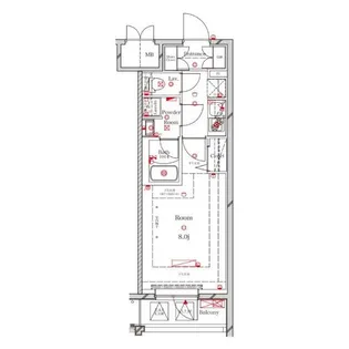
| 11.1万円 / 1.2万円 | 11.1万円 / 11.1万円 | 1K / 25.68m² | 14階 ー | 北 | 詳細を見る |




























































