



東京都中央区日本橋蛎殻町2
東京メトロ半蔵門線/水天宮前駅 歩2分
東京メトロ日比谷線/人形町駅 歩6分
都営新宿線/浜町駅 歩9分
東京メトロ日比谷線/人形町駅 歩6分
都営新宿線/浜町駅 歩9分
地下1地上15階建 / 2013年12月 / 賃貸マンション
人気高級レジデンス募集都心エリアのお部屋探しはお任せ下さい
☆当日の内見予約はまでお下さい☆
ただいま10人が検討中! 人気上昇中!注目の物件です!
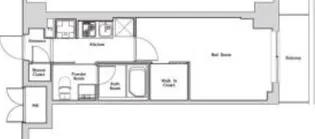
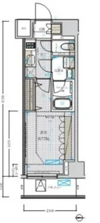
| 賃料 / 管理費 | 敷金 / 礼金 | 間取り / 面積 | 階数 部屋番号 | 方位 | 詳細を見る | |
|---|---|---|---|---|---|---|
| 11.8万円 / ー | 11.8万円 / 11.8万円 | 1K / 25.13m² | 2階 ー | 北東 | 詳細を見る |
















































