



東京都杉並区堀ノ内2
東京メトロ丸ノ内線/方南町駅 歩8分
東京メトロ丸ノ内線/中野富士見町駅 歩19分
東京メトロ丸ノ内線/東高円寺駅 歩19分
東京メトロ丸ノ内線/中野富士見町駅 歩19分
東京メトロ丸ノ内線/東高円寺駅 歩19分
地上4階建 / 2024年04月 / 賃貸マンション
始発駅ネット無料ペット可10.3帖鉄筋造独立洗面オートロック
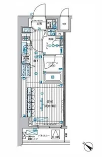
9.4帖のワンルームタイプ。二口キッチンや独立洗面台など人気の設備が揃っています。ペットの飼育も可能なお部屋です。
ただいま1人が検討中!
| 賃料 / 管理費 | 敷金 / 礼金 | 間取り / 面積 | 階数 部屋番号 | 方位 | 詳細を見る | |
|---|---|---|---|---|---|---|
| 10.2万円 / 1.0万円 | 無料 / 10.2万円 | 1R / 25.64m² | 1階 ー | 南西 | 詳細を見る |


























































