



神奈川県横浜市鶴見区生麦5
JR鶴見線/国道駅 歩2分
京急本線/京急鶴見駅 歩12分
JR京浜東北線/鶴見駅 歩14分
京急本線/京急鶴見駅 歩12分
JR京浜東北線/鶴見駅 歩14分
地上4階建 / 1990年04月 / 賃貸マンション
駅チカ☆JR国道徒歩2分☆ライフ・マルエツ・ローソン近隣有☆
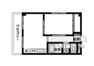
敷地内バイク置場あり・角部屋・バストイレ別・洗面台・室内洗濯機置き場・ガスコンロ設置可キッチン・都市ガス・インターホン・収納スペース・シューズBOX・インターネット可・駐輪スペース・バルコニー・その他
ただいま1人が検討中!
| 賃料 / 管理費 | 敷金 / 礼金 | 間取り / 面積 | 階数 部屋番号 | 方位 | 詳細を見る | |
|---|---|---|---|---|---|---|
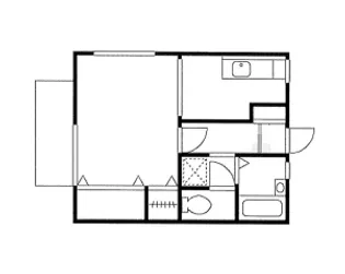
| 8.9万円 / 3,000円 | 8.9万円 / 8.9万円 | 2DK / 43.33m² | 1階 ー | ー | 詳細を見る |




























































