

13.0万円
管理費ー
北総線/秋山駅 歩15分
3LDK / 80.31m²
1階 / 地上2階建
築51年
| 店舗名 | (株)オールワンズライフ | 
|---|---|
| 住所 | 東京都豊島区南池袋3-18-31 フジビル6階 | 
| 定休日 | 毎週火曜日・水曜日 | 
| 営業時間 | 10:00~18:00 | 
| 交通 | - | 
| 免許番号 | 東京都知事(3)第93803号 | 
| 代表者名 | - | 
| 所属団体 | (公社)全日本不動産協会東京都本部会員 (公社)首都圏不動産公正取引協議会加盟 | 
| TEL | 03-5928-0247 | 

5.00
5.00
5.00
5.00
5.00
5.00
5.00
5.00
物件について本音でいろいろと教えてくれました。 小竹向原、千川、要町付近で家を探していたのですが、各駅の特徴や平均家賃、コストパフォーマンスなどを細かく教えていただきました。また、家の造り(コンクリート、木造、RC造)の違いについても、素人でもわかるように教えていただき、家を選ぶうえでの知識もしっかりつけていただきました。また、他に迷っていた物件についても調べていただき、今後の空き状況などを確認いただいたのと、建設をした会社を調べていただき、その会社の評判などもメリットデメリットどちらも教えていただきました。 契約をした、ラペルラについても、内見をすることができなかった分、居住者の感想やオーナーさんの雰囲気などを事細かに教えていただきました。目の前に小学校のプール・グラウンドがあり、虫が多く発生するといった、本来であればマイナス情報(隠すような情報)までしっかりと教えていただき、好感を持てました。 結果、自身も納得したうえで物件を決めることができました。
(2020/04投稿)10:00~18:00
毎週火曜日・水曜日


13.0万円
管理費ー
3LDK / 80.31m²
1階 / 地上2階建
築51年




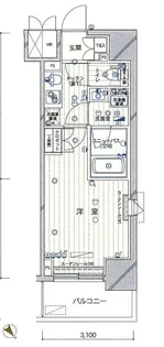
12.4万円
管理費5,000円
1LDK / 34m²
4階 / 地上4階建
築40年 / 賃貸マンション




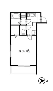
12.6万円
管理費5,000円
1LDK / 36.14m²
2階 / 地上4階建
築40年 / 賃貸マンション


19.5万円
管理費1.0万円
1LDK / 43.4m²
3階 / 地上7階建
築2年 / 賃貸マンション


13.0万円
管理費5,000円
2DK / 40.46m²
1階 / 地上2階建
築48年



6.2万円
管理費3,000円
1K / 25.6m²
2階 / 地上3階建
築7年 / 賃貸アパート
現在0件保存されています。
あと50件保存することができます。
お気に入りページから保存した物件が確認できます。

削除しました。