



東京都墨田区菊川1
都営大江戸線/森下駅 歩6分
東京メトロ半蔵門線/清澄白河駅 歩13分
都営新宿線/菊川駅 歩5分
東京メトロ半蔵門線/清澄白河駅 歩13分
都営新宿線/菊川駅 歩5分
地上7階建 / 2005年12月 / 賃貸マンション
★【弊社限定】特別取扱い物件ございます★
★現在新生活応援キャンペーン実施中★平日オンライン成約で仲介手数料20%キャッシュバック★ご質問等はマエムキ清澄白河店にお早めにお問い合わせ下さい(:)
| 賃料 / 管理費 | 敷金 / 礼金 | 間取り / 面積 | 階数 部屋番号 | 方位 | 詳細を見る | |
|---|---|---|---|---|---|---|
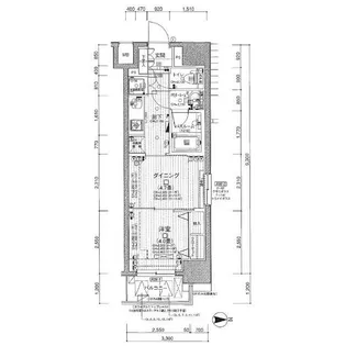
| 7.9万円 / 1.2万円 | 7.9万円 / 7.9万円 | 1K / 21.04m² | 5階 ー | 北 | 詳細を見る |














