



東京都青梅市駒木町2
JR青梅線/青梅駅 歩20分
JR青梅線/宮ノ平駅 歩31分
JR青梅線/東青梅駅 歩36分
JR青梅線/宮ノ平駅 歩31分
JR青梅線/東青梅駅 歩36分
地上2階建 / 2020年01月 / 賃貸アパート
ネット上に掲載されている物件はまとめてご紹介可能です!
◇お問い合わせの際は、No 892880105のお部屋とお伝えください☆ 現地でのお待ち合わせ、ご内見も可能ですので、お気軽にお問い合わせくださいませ☆ クレジットカード取り扱い、保証人不要システム、
ただいま3人が検討中!
| 賃料 / 管理費 | 敷金 / 礼金 | 間取り / 面積 | 階数 部屋番号 | 方位 | 詳細を見る | |
|---|---|---|---|---|---|---|
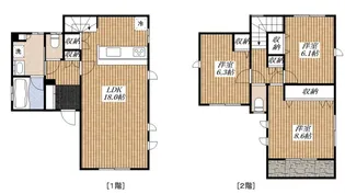
| 5.9万円 / 3,500円 | 無料 / 5.9万円 | 1LDK / 45.33m² | 1階 ー | 南 | 詳細を見る |
















































