



神奈川県川崎市麻生区東百合丘1
小田急線/百合ヶ丘駅 歩22分
小田急線/読売ランド前駅 歩24分
小田急線/新百合ヶ丘駅 歩29分
小田急線/読売ランド前駅 歩24分
小田急線/新百合ヶ丘駅 歩29分
地上2階建 / 1991年06月 / 一戸建
◆お部屋探しは賃貸ステーション町田鶴川店へ!◆
★人気のテラスハウス★リフォーム済できれいな室内★経済的な都市ガス★南西向きの明るいお部屋★敷地内駐車場スペースあり★風呂トイレ別★出窓★室内洗濯機置き場★住環境の整った好立地★お買い物も便利です★
ただいま4人が検討中!
| 賃料 / 管理費 | 敷金 / 礼金 | 間取り / 面積 | 階数 部屋番号 | 方位 | 詳細を見る | |
|---|---|---|---|---|---|---|
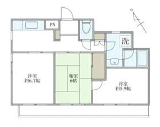
| 6.4万円 / 2,000円 | 6.4万円 / 無料 | 2LDK / 40m² | 2階 ー | 南西 | 詳細を見る |

























































