



兵庫県神戸市兵庫区福原町
神戸市西神山手線/湊川公園 徒歩3分
神戸高速鉄道東西線/新開地 徒歩8分
神戸市西神山手線/大倉山 徒歩10分
神戸高速鉄道東西線/新開地 徒歩8分
神戸市西神山手線/大倉山 徒歩10分
地上15階建 / 新築(2025年10月) / 賃貸マンション
ぜひ一度見ていただきたい、「GENOVIA神戸湊川公園」です。小原病院まで徒歩3分と近いため、緊急時にもすぐに病院まで行けます。収納はシューズボックス・クロゼットなどが備え付けられているので、衣類や日用品の収納に重宝します。住まいを楽しむ。そうすれば、より快適な生活を送ることができるでしょう。快適な住まいをお客様と共にお探し致します。神戸市の賃貸なら株式会社SuMiraiへ
ただいま1人が検討中!
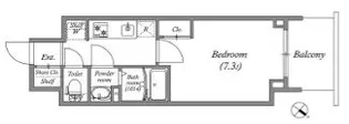
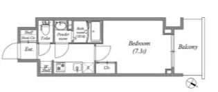
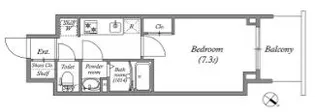
| 賃料 / 管理費 | 敷金 / 礼金 | 間取り / 面積 | 階数 部屋番号 | 方位 | 詳細を見る | |
|---|---|---|---|---|---|---|
| 7.25万円 / 4,500円 | 無料 / 無料 | 1K / 24.9m² | 13階 ー | 北西 | 詳細を見る |




























































