



神奈川県横浜市中区宮川町3
京急本線/日ノ出町駅 歩4分
JR京浜東北線/桜木町駅 歩9分
みなとみらい線/馬車道駅 歩16分
JR京浜東北線/桜木町駅 歩9分
みなとみらい線/馬車道駅 歩16分
地上7階建 / 1990年11月 / 賃貸マンション
【ロイヤルフラット野毛山弐番館】当店おすすめ物件です♪
お早めに物件情報を確認したいお客様は下記の弊社店舗までおください!(当店ではキッズスペース、個室の商談ルームもご用意しております。お気軽にお問い合わせください♪)横浜店:
ただいま1人が検討中!
| 賃料 / 管理費 | 敷金 / 礼金 | 間取り / 面積 | 階数 部屋番号 | 方位 | 詳細を見る | |
|---|---|---|---|---|---|---|
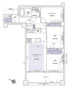
| 14.8万円 / 1.2万円 | 14.8万円 / 無料 | 3DK / 53.07m² | 4階 ー | 南 | 詳細を見る |




























































