



埼玉県ふじみ野市鶴ケ岡1
東武東上線/上福岡駅 歩15分
東武東上線/ふじみ野駅 歩33分
東武東上線/新河岸駅 歩42分
東武東上線/ふじみ野駅 歩33分
東武東上線/新河岸駅 歩42分
地上4階建 / 1993年03月 / 賃貸マンション
通風良好なマンションです
賃料が月7万円の物件です。忙しい朝でも鏡を見ながらサッと身支度を整えることができる独立洗面台があります。新生活を失敗せず、スタートさせたいならこちらの「山崎第6ビル」はいかがでしょうか。
ただいま5人が検討中! 人気上昇中!注目の物件です!
| 賃料 / 管理費 | 敷金 / 礼金 | 間取り / 面積 | 階数 部屋番号 | 方位 | 詳細を見る | |
|---|---|---|---|---|---|---|
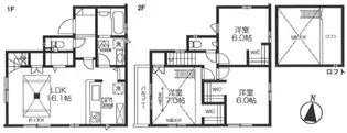
| 7.0万円 / ー | 7.0万円 / 7.0万円 | 2LDK / 48.6m² | 4階 ー | 南東 | 詳細を見る |












































