



東京都中野区中野5
JR中央線/中野駅 歩5分
東京メトロ丸ノ内線/新中野駅 歩20分
西武新宿線/新井薬師前駅 歩17分
東京メトロ丸ノ内線/新中野駅 歩20分
西武新宿線/新井薬師前駅 歩17分
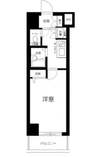
地上2階建 / 2019年12月 / 賃貸アパート
こちらの物件はインターネットが使用料なしで利用できます
セキュリティ面は、TVインターホン・オートロックなど充実しているので、防犯対策もばっちりです。浴室乾燥機を備え付けているので、雨の日など外に干せない時でも部屋干し特有の臭いを防げます。
ただいま2人が検討中!
| 賃料 / 管理費 | 敷金 / 礼金 | 間取り / 面積 | 階数 部屋番号 | 方位 | 詳細を見る | |
|---|---|---|---|---|---|---|
| 7.0万円 / 4,000円 | 無料 / 無料 | 1R / 10.21m² | 2階 ー | ー | 詳細を見る |




























































