



東京都渋谷区笹塚1
京王線/笹塚駅 歩4分
京王新線/幡ヶ谷駅 歩10分
小田急線/東北沢駅 歩16分
京王新線/幡ヶ谷駅 歩10分
小田急線/東北沢駅 歩16分
地上10階建 / 2015年08月 / 賃貸マンション
ご希望の方には弊社にて家具家電一式レンタル可能です!
弊社は都内全域の物件が仲介手数料最大無料でご紹介可能!※一部対象外物件もございますので詳しくは一度お問合せください。
ただいま7人が検討中! 人気上昇中!注目の物件です!
| 賃料 / 管理費 | 敷金 / 礼金 | 間取り / 面積 | 階数 部屋番号 | 方位 | 詳細を見る | |
|---|---|---|---|---|---|---|
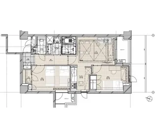
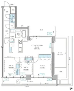
| 12.0万円 / 1.0万円 | 無料 / 12.0万円 | 1K / 30m² | 2階 ー | 北 | 詳細を見る |
















































