



東京都文京区小石川3
東京メトロ丸ノ内線/後楽園駅 歩5分
都営三田線/春日駅 歩5分
都営三田線/春日駅 歩5分
地上15階建 / 2008年02月 / 賃貸マンション
敷金「0円」 駅徒歩5分 床暖房 内装リフォーム
内装リフォーム(一部)敷金「0円」 オートロック・連動エレベータ、ALSOKセキュリティシステム、二重床構造、耐震ドア、ドアガード採用 24時間ゴミ出し・地下駐輪場・床暖房付
ただいま1人が検討中!
| 賃料 / 管理費 | 敷金 / 礼金 | 間取り / 面積 | 階数 部屋番号 | 方位 | 詳細を見る | |
|---|---|---|---|---|---|---|
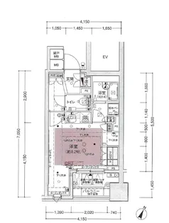
| 11.8万円 / 1.0万円 | 無料 / 11.8万円 | 1R / 25.07m² | 9階 ー | 南 | 詳細を見る |























































