



東京都中央区日本橋箱崎町
東京メトロ半蔵門線/水天宮前駅 歩4分
東京メトロ日比谷線/茅場町駅 歩7分
東京メトロ日比谷線/八丁堀駅 歩13分
東京メトロ日比谷線/茅場町駅 歩7分
東京メトロ日比谷線/八丁堀駅 歩13分
地上9階建 / 2022年06月 / 賃貸マンション
★★お問い合わせはREVEへ★★
★中央区の賃貸マンション★不動産会社は″人柄″で選ぶ時代。素敵なお部屋は素敵なスタッフ選びから。あなたにハマるスタッフが必ず見つかります。お問合せはREVE(レーヴ)まで!
ただいま2人が検討中!
| 賃料 / 管理費 | 敷金 / 礼金 | 間取り / 面積 | 階数 部屋番号 | 方位 | 詳細を見る | |
|---|---|---|---|---|---|---|
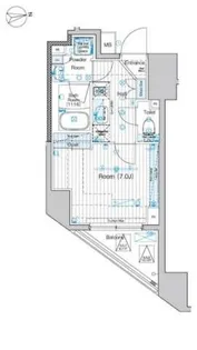
| 19.0万円 / 1.5万円 | 19.0万円 / 19.0万円 | 1LDK / 41.41m² | 6階 ー | ー | 詳細を見る |

























































